Mặt Bằng Feliz En Vista Như Thế Nào?
- Block Cruz: Căn hộ từ 1 – 3 phòng ngủ, diện tích 58 – 106m2
- Block Berdaz: Căn hộ Duplex với diện tích từ 102 – 106m2
- Block Atlaz: Các căn Sky Villa với diện tích từ 132 – 239m2
- Block Somerset: Các căn hộ dịch vụ
Mặt bằng tổng thể Feliz En Vista Quận 2
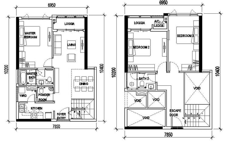
Mặt bằng tòa Cruz chung cư Feliz en Vista
Mặt bằng tầng điển hình tòa Cruz
– Từ tầng 5 – 12 và từ tầng 15 – 26 bao gồm:
+ Căn hộ 1PN – có 4 căn/sàn – diện tích 57,77m2
+ Căn hộ 2PN – có 9 căn/sàn – diện tích từ 82,82m2
+ Căn hộ 3PN – có 2 căn/sàn – diện tích từ 106m2
– Tầng 12A, 12B, 27, 28 bao gồm
+ Căn hộ 1PN – với 4 căn/sàn – diện tích 57,77m2
+ Căn hộ 2PN – với 7 căn/sàn – diện tích từ 82,82m2
+ Căn hộ 3PN – với 2 căn/sàn – diện tích 106m2
– Tầng 29 – 34
+ Căn hộ 1PN – có 2 căn/sàn – diện tích 57,77m2
+ Căn hộ 2PN – có 9 căn/sàn – diện tích từ 82,82m2
+ Căn hộ 3PN – có 3 căn/sàn – diện tích từ 106m2
Thiết kế căn hộ tại tòa Cruz thuộc dự án Feliz En Vista
Mặt bằng toà Berdaz chung cư Feliz en Vista
Mặt bằng tầng điển hình toà Berdaz
+ Căn 2 PN: 103m2 là căn hộ thông tầng.
+ Căn 3 PN: Diện tích 106m2.
+ Căn hộ sân vườn: từ 400 – 500m2, chỉ có 2 căn.
+ Diện tích khoảng không là 5,85 m
+ Sổ hồng cho cả 2 tầng
+ Có cửa chính ra vào cho cả 2 tầng
Căn hộ thông tầng trên cao tại tòa Berdaz
Căn hộ 3PN đơn lập tại tòa Berdaz
Căn hộ 3PN song lập tạo ra không gian riêng tư:
Thiết kế căn hộ 3PN song lập
Mặt bằng toà Altaz chung cư Feliz en Vista
Altaz là toà căn hộ cao cấp nhất tại dự án Feliz en Vista, thiết kế căn hộ tại đây được đánh giá là thoáng nhất.
+ Sky Loft: 3PN duplex, diện tích 132.55m2
+ Sky Villa: 4PN đơn lập, diện tích 181m2
+ Sky Mansion: 4PN đơn lập, diện tích 239m2
Mặt bằng toà Altaz
Căn hộ Sky Loft 3PN dạng Duplex với thiết kế song lập, có lõi thang máy riêng biệt. Căn hộ được thiết kế như sau:
- Phòng khách và ban công rộng rãi
- Khu vực bếp và bàn ăn
- 03 phòng ngủ với 01 phòng ngủ có ban công
- Khu vực vệ sinh
Căn hộ Sky Loft 3PN dạng Duplex
Căn hộ Sky Villa 4PN với thiết kế đơn lập, view nhìn trung tâm thành phố, sông Sài Gòn và hồ bơi nước mặn
- Có thang máy đến tận căn hộ của bạn
- Khu vực sảnh riêng
- Phòng khách cùng với ban công thoáng
- Khu vực bếp khô và bếp ướt
- Phòng ngủ
- Khu vực vệ sinh dành cho khách
Căn hộ Sky Villa 4PN với thiết kế đơn lập
Căn hộ Sky Mansion 4PN thiết kế đơn lập, view trực diện sông Sài Gòn, trung tâm thành phố và hệ thống hồ bơi tại dự án:
- Phòng khách và ban công rộng, cửa xếp tạo không gian thoáng
- Khu vực bếp: bếp ướt dùng để chế biến thức ăn có mùi và bếp khô với những thức ăn nhanh, ít mùi
- 02 Phòng Master
- 02 Phòng ngủ nhỏ
- Phòng làm việc
- Phòng dành cho người giúp việc
- Khu vực vệ sinh riêng dành cho khách
- Căn hộ 4PN được bàn giao hoàn thiện với thiết bị cao cấp
Căn hộ Sky Mansion 4PN thiết kế đơn lập
Giá bán Feliz En Vista Bao Nhiêu?
- Căn 1 PN, diện tích 58m2, giá từ 2,8 tỷ – 3,47 tỷ/căn tùy tầng, hướng.
- Căn 2 PN, diện tích 76,4m2 – 84m2, giá từ 3,7 – 4,2 tỷ/căn.
- Căn 3 PN, diện tích 107m2, giá từ 5,5 tỷ – 6,5 tỷ/căn.
- Căn 4 PN, diện tích 181m2 – 240m2, giá từ 9,6 tỷ – 15 tỷ/căn.
Căn hộ thực tế dự án Feliz En Vista
- Vista Verde: từ 50 – 52 triệu/m2.
- One Verandah: 70 triệu/m2.
- Waterina Suites: 70 triệu/m2.
- New City Thủ Thiêm: 45 triệu/m2.
- Diamond Island (Đảo Kim Cương): từ 62 – 82 triệu/m2.
- Define Capitaland: 80 triệu/m2.
Trên đây là những thông tin chi tiết nhất về mặt bằng Feliz En Vista cũng như giá bán được cập nhật mới nhất tại dự án. Hy vọng bài viết giúp ích cho bạn khi tìm hiểu để mua căn hộ Feliz En Vista để ở hoặc để đầu tư.
Thu Pham
Xem thêm
>> Chi Tiết Mặt Bằng Căn Hộ Sunrise City Quận 7
>> Mặt Bằng One Verandah Có Gì Nổi Bật?




