Chủ nhà vốn là doanh nhân thành đạt và từng trải nên có quan niệm kiến trúc vô cùng độc đáo. Hai vợ chồng có sự khác biệt trong quan niệm về nhà ở. Người chồng thích sự độc đáo, mới lạ còn người vợ lại đề cao những thứ thiết thực và tiện lợi. Hai quan điểm vừa mâu thuẫn, vừa bổ sung cho nhau tạo nguồn cảm hứng cho kiến trúc sư Trần Lê Quốc Bình trong thiết kế biệt thự.
Kết quả là ngôi nhà đã có một sự dung hòa thú vị: phần kiến trúc và diện mạo bên ngoài cực kỳ độc đáo theo như mong muốn của người chồng, trong khi mọi công năng bên trong lại thỏa mãn tiêu chí mà người vợ đặt ra.

Tổng thể căn biệt thự sang trọng khi nhìn từ bên ngoài.

Cảnh quan bên trong biệt thự vào buổi tối.

Thảm cỏ, cây xanh tôn lên vẻ đẹp của căn biệt thự màu trắng.
 |
| Yếu tố nước trong cảnh quan gồm hồ bơi và hồ cá. |

Hồ cá.

Cầu thang dẫn lên tầng trên.

Khu vực ăn uống cùng góc tiếp khách nhìn thẳng ra hồ bơi.

Đèn chùm hình tổ chim cùng thang máy ốp gỗ khiến người ta liên tưởng tới thân cây.

Sự kết hợp màu sắc vô cùng ấn tượng.
 |
| Phòng bếp rộng rãi, ngập tràn ánh sáng tự nhiên. Các vật liệu ốp lát đều sáng bóng, dễ vệ sinh và tạo cảm giác sạch sẽ, đây là những tiêu chí mà nữ chủ nhân đặc biệt quan tâm. |

Góc nhìn độc đáo từ bên ngoài vườn vào khu ăn uống.

Phòng giải trí đa năng với nhiều thiết bị hiện đại.

Phòng ngủ của bố mẹ có bàn làm việc bên cạnh.

Phòng thay đồ rộng rãi.

Khu vệ sinh, tắm rửa.

Phòng của hai con.

Giường ngủ được đẩy lên cao.

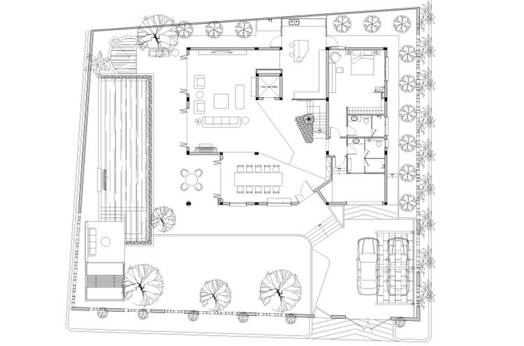
Mặt bằng tầng trệt.

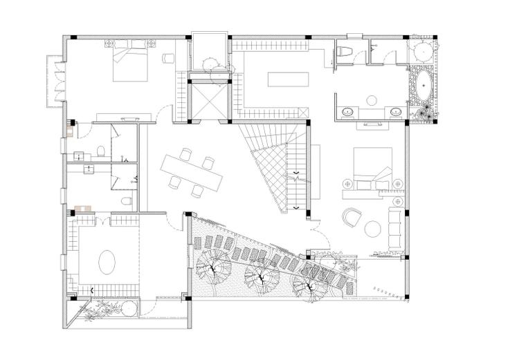
Mặt bằng lầu 1.

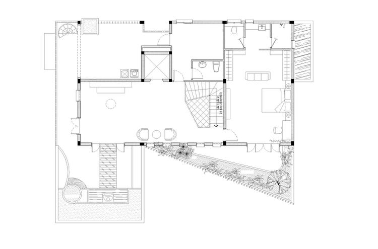
Mặt bằng lầu 2.

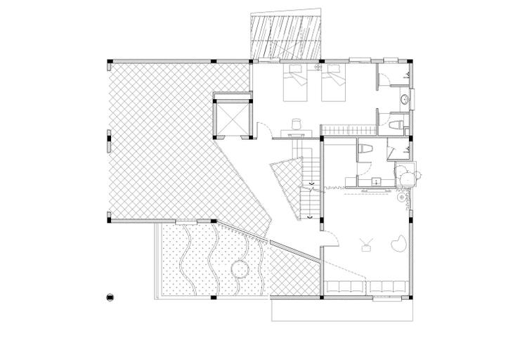
Mặt bằng sân thượng.

Mặt đứng trước.

Mặt bên.
Minh Châu
http://thanhnienviet.vn/2020/02/10/biet-thu-sang-trong-thoa-man-yeu-cau-trai-nguoc-nhau-cua-vo-chong-chu-nha
Link nguồn: http://thanhnienviet.vn/2020/02/10/biet-thu-sang-trong-thoa-man-yeu-cau-trai-nguoc-nhau-cua-vo-chong-chu-nha
Tuyên bố miễn trừ trách nhiệm: Thông tin được cung cấp chỉ mang tính chất thông tin chung, Công ty cổ phần PropertyGuru Việt Nam không đưa ra bất kỳ tuyên bố hoặc bảo đảm nào liên quan đến thông tin, bao gồm nhưng không giới hạn bất kỳ sự tuyên bố hoặc bảo đảm về tính thích hợp cho bất kỳ mục đích cụ thể nào của thông tin theo phạm vi cho phép tối đa của pháp luật. Mặc dù đã nỗ lực để đảm bảo rằng thông tin được cung cấp trong bài viết này là chính xác, đáng tin cậy và hoàn chỉnh vào thời điểm đăng tải, nhưng thông tin được cung cấp trong bài viết này không nên được dựa vào để đưa ra bất kỳ quyết định tài chính, đầu tư, bất động sản hoặc pháp lý nào. Thêm vào đó, thông tin không thể thay thế lời khuyên từ một chuyên gia được đào tạo, người mà có thể xem xét, đánh giá các sự kiện và hoàn cảnh cá nhân của bạn, và chúng tôi không chịu bất kỳ trách nhiệm nào nếu bạn sử dụng những thông tin này để đưa ra quyết định.