Chủ nhà mong muốn có một không gian yên tĩnh, thân mật, phù hợp với điều kiện khí hậu nhiệt đới nóng ẩm của TP.HCM, đảm bảo tiện nghi và riêng tư cho việc nghỉ ngơi, sinh hoạt của gia đình trong bối cảnh đông đúc của khu vực.
Các kiến trúc sư của DMArchitects đã nghiên cứu kỹ càng cấu trúc hiện trạng, xác định thành phần nào có thể loại bỏ và thành phần nào buộc phải giữ lại trong quá trình cải tạo. Tuy nhiên, cũng có một số bộ phận kết cấu không thể chắc chắn được nếu không tháo dỡ trong quá trình sửa chữa. Từ đó, kiến trúc sư quyết định đưa ra một kế hoạch cho phép thiết kế ngẫu hứng và tùy biến xây dựng các thành phần không chắc chắn trên công trường.
Giải pháp cấu trúc mới tạo ra một sự liên kết liên tục giữa các không gian sử dụng, sự kết nối giữa trong và ngoài, sự kết nối giữa con người và thiên nhiên, tránh việc con người bị chia cách hoàn toàn với thiên nhiên bởi công trình kiến trúc nhưng vẫn đảm bảo được tính riêng tư.

Màu đỏ của ngôi nhà được phát triển từ phần cầu thang đá mài.

Sắc đỏ tươi giúp công trình nổi bật giữa những ngôi nhà phố lân cận.
Với tiêu chí khắc phục những hạn chế về thông gió và chiếu sáng tự nhiên của cấu trúc cũ, cấu trúc mới tận dụng tối đa việc chiếu sáng và thông gió tự nhiên cho toàn nhà, giảm thiểu việc sử dụng năng lượng trong quá trình vận hành.
Thứ nhất, tất cả các phòng đều được bố trí cửa sổ thông gió ở 2 đầu, đảm bảo việc thông gió xuyên phòng từ trước ra sau nhà. Thứ hai, dựa trên hệ kết cấu cũ, kiến trúc sư đề xuất mở 3 vị trí thông tầng để đảm bảo việc thông gió trục đứng đạt được hiệu quả tốt nhất, cùng việc tạo ra khoảng không gian đệm phía trước nhà, phối hợp với cây xanh để ngăn việc bức xạ nhiệt trực tiếp vào công trình. Cuối cùng, bố trí yếu tố mặt nước ở tầng trệt nhằm cân bằng độ ẩm và tạo chênh lệch áp suất giúp cho việc thông gió hiệu quả hơn.

Giếng trời cuối nhà giúp lấy ánh sáng và đảm bảo thông gió hiệu quả cho nhà ống.

Khoảng đệm kết hợp cây xanh ngăn bức xạ nhiệt tác động vào công trình.

Đây cũng là cách gắn kết con người với thiên nhiên.

Tầng trệt được giữ lại nguyên trạng trong quá trình sửa chữa.

Việc tái sử dụng các món đồ nội thất cũ trong thiết kế giúp gợi lại trong mỗi người kí ức gắn liền với ngôi nhà.

Yếu tố mặt nước nơi tầng trệt có vai trò cân bằng độ ẩm, giữ không khí trong nhà luôn mát mẻ.
Không gian sinh hoạt gia đình và bếp được đặt ở vị trí trung tâm của nhà, đồng thời là vị trí có khối tích không gian lớn nhất có thể được tạo thành, là nơi mọi người trong gia đình dành hầu hết thời gian sử dụng trong ngày. Từ không gian sinh hoạt gia đình có thể liên kết với tất cả các không gian khác, đảm bảo sự kết nối chặt chẽ giữa các thành viên trong gia đình. Các không gian phục vụ được nép về một phía dựa trên hệ kết cấu cũ, đảm bảo nhu cầu sử dụng cho các thành viên trong gia đình và tránh gây ảnh hưởng đến các không gian chính.

Không gian sinh hoạt chung với phòng khách, bếp và phòng ăn liên thông nhau.

Đây chính là nơi gắn kết gia đình 3 thế hệ.

Mọi phòng đều được để mở 2 đầu cho phép thông gió hiệu quả hơn.

Tận dụng gầm cầu thang làm khu giặt đồ.

Các phòng ngủ đều được tiếp xúc trực tiếp với ánh sáng tự nhiên.

Mọi không gian đều có tính kết nối – giữa trong và ngoài, giữa con người và thiên nhiên.

Phòng tắm đơn giản nhưng ấn tượng với sàn đá mài.

Việc lồng ghép khéo léo cây xanh vào không gian sống ngoài tác dụng tạo màu xanh, tăng cường tính thẩm mỹ còn
giúp chống nóng cho công trình rất tốt.

Mặt bằng tầng 1 và tầng 2.

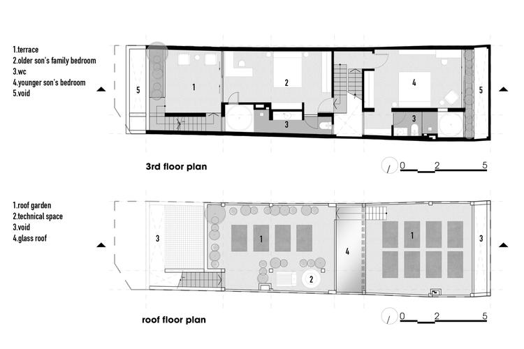
Mặt bằng tầng 3 và tầng 4.

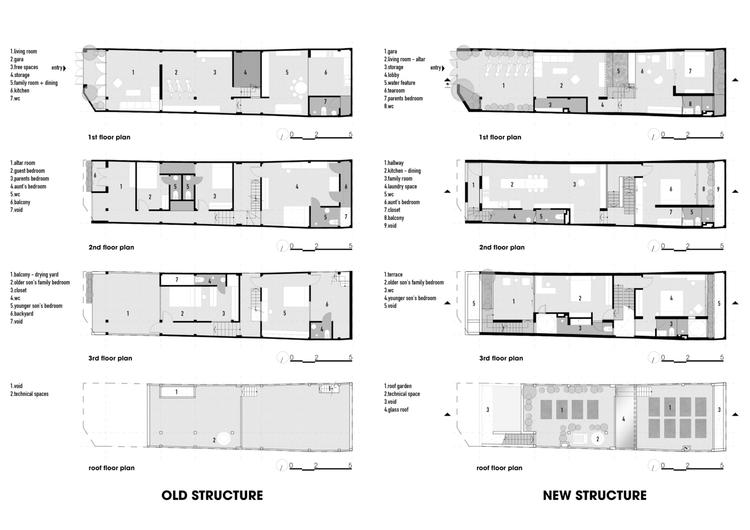
Mặt bằng cũ và mặt bằng mới.
Thông tin dự án:
– Đơn vị thiết kế: DMArchitects
– Địa điểm: TP.HCM
– Kiến trúc sư chủ trì: Phạm Đức Minh
– Diện tích: 270m2
– Năm hoàn thành: 2021
– Nhiếp ảnh: Paul Phan
Khánh An
>> Cải tạo phòng trọ thiếu sáng thành không gian sống xinh xắn, tiện nghi không kém căn hộ studio
Link nguồn: http://thanhnienviet.vn/2021/06/30/3-giai-phap-giup-nha-sai-gon-40-nam-tuoi-thoang-sang-mat-me-hon-sau-cai-tao
Tuyên bố miễn trừ trách nhiệm: Thông tin được cung cấp chỉ mang tính chất thông tin chung, Công ty cổ phần PropertyGuru Việt Nam không đưa ra bất kỳ tuyên bố hoặc bảo đảm nào liên quan đến thông tin, bao gồm nhưng không giới hạn bất kỳ sự tuyên bố hoặc bảo đảm về tính thích hợp cho bất kỳ mục đích cụ thể nào của thông tin theo phạm vi cho phép tối đa của pháp luật. Mặc dù đã nỗ lực để đảm bảo rằng thông tin được cung cấp trong bài viết này là chính xác, đáng tin cậy và hoàn chỉnh vào thời điểm đăng tải, nhưng thông tin được cung cấp trong bài viết này không nên được dựa vào để đưa ra bất kỳ quyết định tài chính, đầu tư, bất động sản hoặc pháp lý nào. Thêm vào đó, thông tin không thể thay thế lời khuyên từ một chuyên gia được đào tạo, người mà có thể xem xét, đánh giá các sự kiện và hoàn cảnh cá nhân của bạn, và chúng tôi không chịu bất kỳ trách nhiệm nào nếu bạn sử dụng những thông tin này để đưa ra quyết định.