Vegan House vốn là một căn trong khu nhà liền kề được xây dựng cách đây hơn nửa thế kỷ ở Quận 3, TP.HCM. Theo dòng thời gian, nhà đã cũ kỹ, xuống cấp, dần trở nên lạc lõng giữa nhịp sống hối hả của cuộc sống hiện đại cùng quá trình đô thị hóa. Làm việc trong ngành du lịch, lữ hành, chủ nhân của ngôi nhà mong muốn cải tạo nơi này thành một không giao giao lưu văn hóa để mọi người có thể gặp gỡ, trao đổi, cùng nhau nấu những món ăn truyền thống Việt Nam, đặc biệt là các món thuần chay. Anh sưu tầm những món đồ nội thất cũ như bàn ghế, tủ quần áo, cửa sổ, chao đèn,… do bạn bè bỏ đi vì không còn dùng đến, đưa tất cả về dự án cải tạo ngôi nhà. Từ “kho đồng nát” này và những thứ sẵn có trong ngôi nhà cũ, kiến trúc sư đã cải tạo thành một không gian mới, phù hợp với công năng gia chủ mong muốn trong khi vẫn giữ lại những đường nét, giá trị đậm chất cổ điển. Sự giao thoa giữa cũ và mới trong ngôi nhà là minh chứng cho việc thích ứng nhưng không hòa tan, thậm chí còn tôn vinh những giá trị của thời gian trong kiến trúc hiện đại.

Ngôi nhà Vegan House thuộc một dãy nhà liền kề xây từ năm 1965 ở Sài Gòn. Thách thức cho việc cải tạo là làm sao tạo ra một không gian mới trong khi vẫn phải lưu giữ được tinh thần lịch sử của thiết kế cũ và không làm ảnh hưởng đến kết cấu của các nhà lân cận.

Hiện trạng khu nhà liền kề trước cải tạo.

Ngôi nhà trước cải tạo có kết cấu khá vững chắc, gia chủ mong muốn dự án cải tạo sẽ có sự giao thoa giữa cũ và mới, giữ được đồng nhất về ngôn ngữ và tinh thần chung của ngôi nhà.
Kiến trúc sư sử dụng những cánh cửa chớp lật bằng gỗ, được sơn nhiều màu sắc rực rỡ để bao phủ từ mái đến mặt tiền ngôi nhà, tạo ấn tượng độc đáo, giúp ngôi nhà nổi bật giữa các ngôi nhà xung quanh dù vẫn hài hòa với kiến trúc tổng thể toàn khu.

Ở phần mái, một số ô cửa được mở ra để đón nắng, gió tự nhiên, cải thiện vấn đề chiếu sáng và thông gió bị hạn chế ở công trình cũ.

Bên dưới những ô cửa này là một khu vườn mini xanh tốt, tượng trưng cho khát vọng vươn tới tương lai từ nền tảng quá khứ.

Những ô cửa gỗ đa sắc tiếp tục xuất hiện bên trong ngôi nhà, đóng vai trò như những vách ngăn phân chia không gian nội thất một cách tương đối.

Nội thất được sử dụng trong ngôi nhà đa phần là các món đồ cũ do gia chủ sưu tầm của bạn bè, rất hài hòa với không gian đậm chất cổ điển, nhuốm màu thời gian.
Tầng trệt của ngôi nha có một hệ tủ bếp dài với thiết kế uốn lượn xuyên suốt các không gian. Phần trước nhà, kiến trúc sư bố trí một không gian bếp lớn để khách đến nhà có thể giao lưu, cùng nhau nấu ăn và thưởng thức những món ngon tại khu vực bàn ăn phía sau. Xen giữa hai khu vực này là một khoảng vườn trồng cây xanh và cầu thang cũ dẫn lên tầng 2. Kiến trúc sư cũng thiết kế thêm một cầu thang sắt mới bên hông khoảng thông tầng để lên tầng trên, nơi này vốn là phần mái nhà cũ, không được sử dụng. Bên dưới hệ mái nhà bằng những cánh cửa, có một căn phòng ngủ mới làm thêm, cách mái một khoảng vừa phải để tránh hấp thụ nhiệt vào bên trong. Từ phòng ngủ này có thể đi ra khoảng sân trồng cây ở phía trước. Gia chủ có thể ngồi uống trà và ngắm bầu trời thấp thoáng qua những khe cửa, tán lá. Ở mỗi tầng, kiến trúc sư thiết kế thêm hai nhà vệ sinh nhỏ và một khoảng thông tầng hẹp ở cuối nhà để cải thiện thông gió và chiếu sáng cho nhà vệ sinh.

Giữa nhà là khoảng không gian trồng cây xanh và hệ cầu thang cũ dẫn lên tầng trên.

Kiến trúc sư đã khéo léo sắp xếp các lớp không gian cũ và mới đan xen vào nhau, thổi hồn cốt của kiến trúc truyền thống vào một không gian hiện đại, hợp thời hơn.

Vật liệu của những bức tường và sàn được giữ lại nguyên vẹn như vốn có, kết hợp với vẻ thô mộc của bề mặt xi măng, những ô cửa chớp lật tạo ra một không gian giao thoa giữa cũ và mới, mang đặc trưng của kiến trúc Việt Nam thập niên 60-70.

Hệ tủ bếp uốn lượn, chạy xuyên suốt ngôi nhà là không gian cho gia chủ và các vị khách giao lưu, gặp gỡ, cùng nhau nấu các món chay.

Công trình sau cải tạo được kỳ vọng sẽ tạo ra một không gian mới cho những con người mới đến từ nhiều nền văn hóa khác nhau, trên cơ sở sắp xếp lại những cái đã cũ theo một cách mới, để cũ và mới cùng tồn tại và hỗ trợ lẫn nhau thay vì triệt tiêu hoàn toàn cái cũ. Theo thời gian, những con người sống ở đây sẽ mang đến sức sống, linh hồn mới cho ngôi nhà.

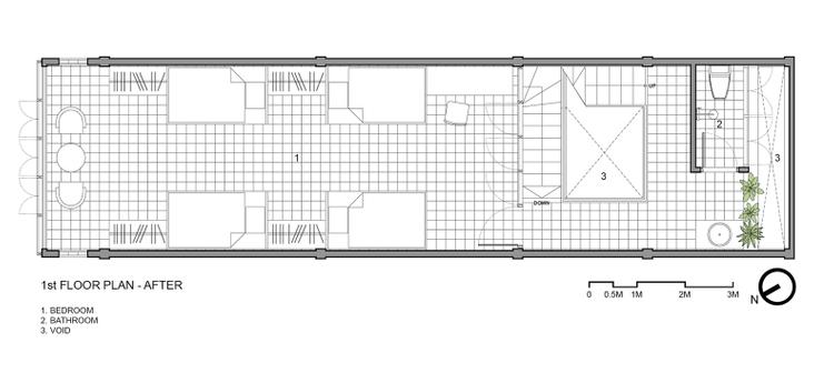
Mặt bằng tầng trệt

Mặt bằng tầng 2

Mặt bằng tầng sân thượng

Mặt bằng mái
Thông tin công trình:
- Tên công trình: Vegan House
- Địa điểm: Quận 3, TP.HCM
- Diện tích: 60m2
- Đơn vị thiết kế: Block Achitects
- Kiến trúc sư phụ trách: Đặng Đức Hòa
- Năm hoàn thành: 2014
- Ảnh: Quang Trần
Hương Liên
Tuyên bố miễn trừ trách nhiệm: Thông tin được cung cấp chỉ mang tính chất thông tin chung, Công ty cổ phần PropertyGuru Việt Nam không đưa ra bất kỳ tuyên bố hoặc bảo đảm nào liên quan đến thông tin, bao gồm nhưng không giới hạn bất kỳ sự tuyên bố hoặc bảo đảm về tính thích hợp cho bất kỳ mục đích cụ thể nào của thông tin theo phạm vi cho phép tối đa của pháp luật. Mặc dù đã nỗ lực để đảm bảo rằng thông tin được cung cấp trong bài viết này là chính xác, đáng tin cậy và hoàn chỉnh vào thời điểm đăng tải, nhưng thông tin được cung cấp trong bài viết này không nên được dựa vào để đưa ra bất kỳ quyết định tài chính, đầu tư, bất động sản hoặc pháp lý nào. Thêm vào đó, thông tin không thể thay thế lời khuyên từ một chuyên gia được đào tạo, người mà có thể xem xét, đánh giá các sự kiện và hoàn cảnh cá nhân của bạn, và chúng tôi không chịu bất kỳ trách nhiệm nào nếu bạn sử dụng những thông tin này để đưa ra quyết định.