Nhằm khắc phục tình trạng diện tích xây dựng hạn chế và sự giới hạn về không gian mở, toàn bộ không gian riêng tư ở tầng trệt được đẩy lùi về phía sau, nhường diện tích cho khoảng vườn xinh xắn. Trong khi đó, tầng 1 – không gian sinh hoạt chung của gia đình nhìn về hướng Bắc để đón ánh sáng và tránh nắng gay gắt.
Tầng 1 được cơi nới thêm nhìn về phía cây lớn cạnh nhà nhằm tận dụng bóng mát từ tán cây mà vẫn cho phép tối đa hóa ánh sáng tự nhiên và mở ra tầm nhìn rộng mở về phía thành phố.
Bên cạnh đó, các kiến trúc sư còn ứng dụng các giải pháp làm tăng hiệu quả sử dụng năng lượng như lắp đặt pin mặt trời và hệ thống thu gom nước mưa, biến công trình thành một ngôi nhà thụ động đúng nghĩa, từ đó hạn chế tác động tiêu cực đến môi trường xung quanh trong bối cảnh hiệu ứng nhà kính đang gia tăng mạnh như hiện nay.
Ngôi nhà được trang bị nhiều tính năng tiết kiệm năng lượng như pin mặt trời hay hệ thống thu gom nước mưa.
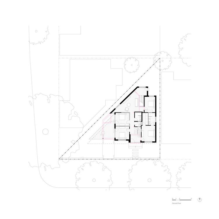
Sau quá trình nâng cấp, cơi nới, tổng diện tích sử dụng đã được mở rộng lên gần 200m2 so với diện tích nền khoảng 70m2. Kiến trúc sư vẫn giữ lại tầng trệt nhưng cấu trúc lại để tạo thành 4 phòng ngủ, 1 phòng khách và khoảng sân hiên.
Điểm nổi bật của công trình chính là phần cơi nới thêm ở phía trên. Khác với toàn bộ khối nhà tầng trệt, phần cơi nới thêm được bao bọc trong một lớp gỗ màu đen tuyền, đua ra tạo thành mái che cho khoảng sân hiên bên dưới.
Mái hiên sâu và rèm lá che chắn các ô kính, tán lá từ cây vả góp phần làm dịu lại ánh nắng gay gắt từ phía Tây.
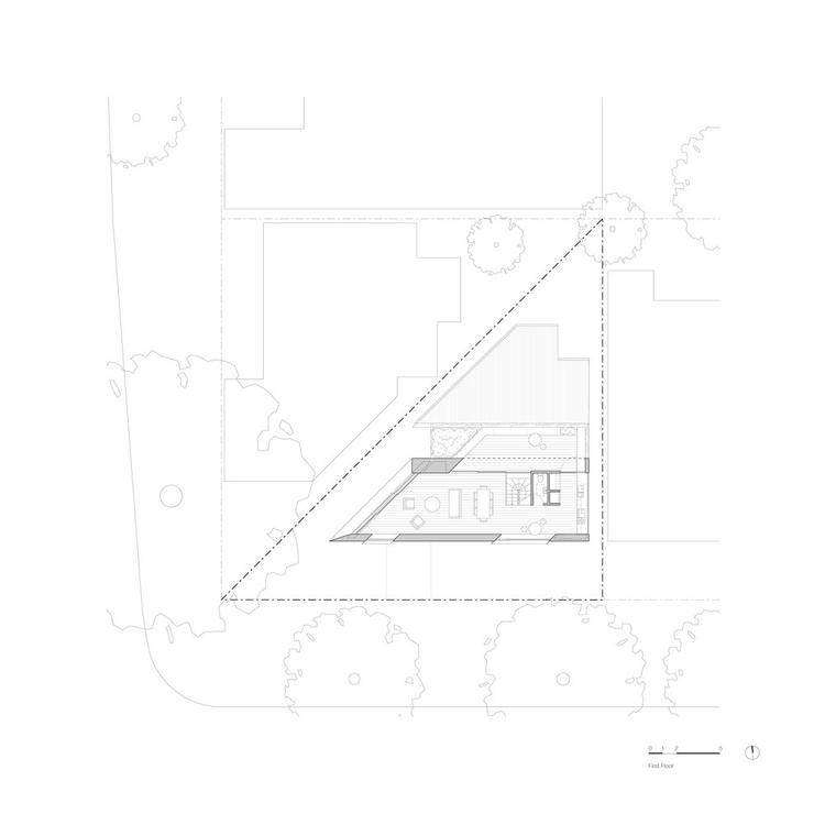
Toàn bộ tầng 1 được cấu trúc lại thành một không gian đa năng, tràn đầy ánh sáng tự nhiên.
Không gian ngủ nghỉ riêng tư và khép kín ẩn mình ở tầng trệt.
Không gian sinh hoạt chung của gia đình ở trên tầng 1.
Đáp trả lại hình dạng dị thường của mảnh đất, những đường xiên chéo hiện diện ở khắp nơi trong ngôi nhà, từ cửa sổ cho đến khu vực thư giãn ngoài trời.
Nhằm tăng cường sự riêng tư, khối nhà mới được bao bọc một phần bằng các tấm kim loại đột lỗ. Tấm chắn này cũng có tác dụng bảo vệ ngôi nhà khỏi cái nắng mặt trời gay gắt trong khi vẫn cho phép ánh sáng tự nhiên đi vào bên trong.
Giải pháp thiết kế cũng hướng đến việc tích hợp công năng vào từng chi tiết nhằm làm phong phú thêm lối sống gia đình. Ở đây, phần ban công của tầng 1 vừa là nơi trồng cây, vừa để bố trí tủ lưu trữ và bàn ghế thư giãn ngoài trời.

Sơ đồ bố trí mặt bằng tầng trệt.

Sơ đồ bố trí mặt bằng tầng 1.




