Lạc vào thiền viện trong ngôi nhà 78m2 ở Sài Gòn

Ban nội dung
Được đăng bởi Ban nội dung
ngôi nhà trong hẻm
Ngôi nhà nằm trong hẻm nhỏ, với mặt tiền khiêm tốn, không hề khoa trương. Những hình ảnh thân thuộc như cửa gỗ, gạch bông gió đỏ mang lại cảm giác gần gũi, mộc mạc.
cửa vào nhà
Nhà được thiết kế gồm 1 trệt, 3 lầu với diện tích sàn 78m2, là nơi trú ẩn của gia đình theo đạo Phật. Vì lẽ đó, nơi đây phải là một không gian yên bình, mang lại cảm giác thư giãn, thanh tịnh.
không gian bên trong nhà
Yên tĩnh, tách biệt với thế giới xô bồ bên ngoài nhưng căn nhà vẫn ngập tràn ánh sáng tự nhiên vào ban ngày nhờ cách tổ chức không gian xoay quanh lõi thông tầng trung tâm, kết hợp cùng trần nhà bằng kính.
phòng khách - bếp liên thông
Tầng trệt gồm các không gian sinh hoạt chung với phòng khách – bếp – ăn liên thông nhau. Ngoài ra còn có phòng vệ sinh và phòng giặt đồ.
bộ sofa đỏ
Bộ sofa đỏ nổi bật trở thành điểm nhấn trong không gian nhuốm màu trầm lắng.
cầu thang gỗ khung thép
Nhà được thi công bằng phương pháp lắp ráp, chỉ xây phần tường bao, sau đó liên kết các cấu kiện gỗ, sắt, thạch cao, xi măng dăm gỗ…
hành lang
Bảng vật liệu tự nhiên, thô mộc với gạch để trần không sơn trát, nội thất gỗ chỉ quét dầu bảo vệ, lan can cầu thang vẫn giữ nguyên màu kim loại nguyên bản…
cô gái ngồi đọc sách bên cửa sổ
Mọi phòng trong nhà đều đón nhận được ánh sáng tự nhiên thông qua giếng trời, cửa sổ, cầu thang rỗng…

phòng ngủ đơn giản
Phòng ngủ giản dị, chỉ có những vật dụng cần thiết.

phòng ngủ
Một phòng ngủ khác trên lầu 2.

chậu cây xanh
Cây xanh được khéo léo thêm thắt vào các góc nhà, kết hợp ăn ý với bảng màu tự nhiên có sẵn.

phòng tắm
Phòng tắm gây ấn tượng với bồn rửa bằng đá thô mộc.

gạch bông gió và cửa song tiện
Gạch bông gió cùng cửa song tiện nơi mặt tiền là giải pháp chiếu sáng, thông gió hiệu quả. Ánh sáng chiếu từ bên ngoài vào tạo nên hiện tượng đổ bóng trên sàn nhà với những khoảng sáng – tối đan xen rất thú vị.

bản vẽ mặt bằng tầng trệt
Mặt bằng tầng trệt.

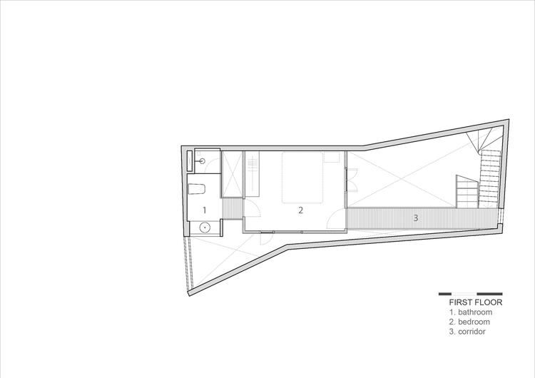
bản vẽ mặt bằng lầu 1
Mặt bằng lầu 1.

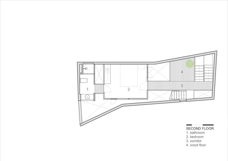
bản vẽ mặt bằng lầu 2
Mặt bằng lầu 2.

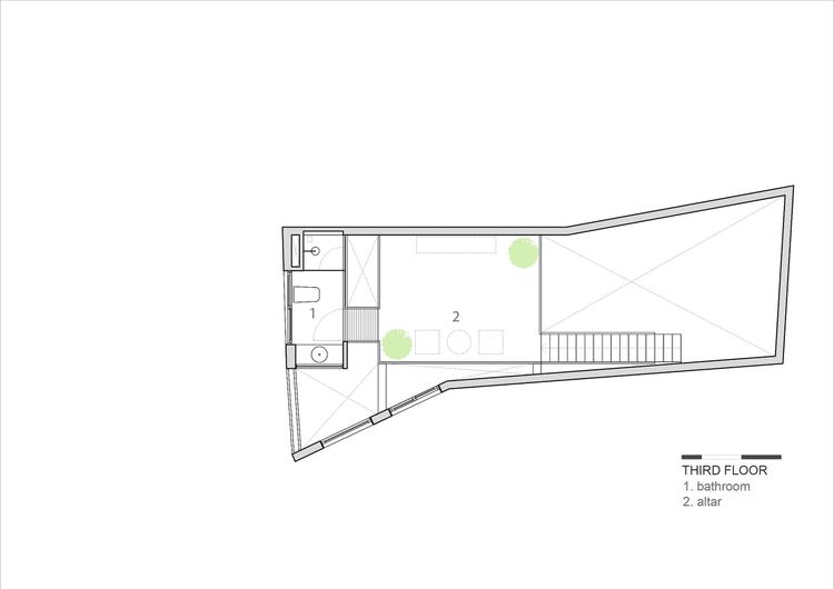
bản vẽ mặt bằng lầu 3
Mặt bằng lầu 3.

bản vẽ mặt cắt nhà
Mặt cắt nhà.

Thông tin dự án:
  • Tên công trình: Zen House
  • Đơn vị thiết kế: H.A Workshop
  • Địa chỉ: Quận Bình Thạnh, TP.HCM
  • Hoàn thành: 2016
  • Diện tích: 78m2
  • Hình ảnh: Quang Dam

Khánh An

Link nguồn: http://thanhnienviet.vn/2020/05/14/lac-vao-thien-vien-trong-ngoi-nha-78m2-o-sai-gon
Tuyên bố miễn trừ trách nhiệm: Thông tin được cung cấp chỉ mang tính chất thông tin chung, Công ty cổ phần PropertyGuru Việt Nam không đưa ra bất kỳ tuyên bố hoặc bảo đảm nào liên quan đến thông tin, bao gồm nhưng không giới hạn bất kỳ sự tuyên bố hoặc bảo đảm về tính thích hợp cho bất kỳ mục đích cụ thể nào của thông tin theo phạm vi cho phép tối đa của pháp luật. Mặc dù đã nỗ lực để đảm bảo rằng thông tin được cung cấp trong bài viết này là chính xác, đáng tin cậy và hoàn chỉnh vào thời điểm đăng tải, nhưng thông tin được cung cấp trong bài viết này không nên được dựa vào để đưa ra bất kỳ quyết định tài chính, đầu tư, bất động sản hoặc pháp lý nào. Thêm vào đó, thông tin không thể thay thế lời khuyên từ một chuyên gia được đào tạo, người mà có thể xem xét, đánh giá các sự kiện và hoàn cảnh cá nhân của bạn, và chúng tôi không chịu bất kỳ trách nhiệm nào nếu bạn sử dụng những thông tin này để đưa ra quyết định.

Bất Động Sản Khánh Hòa Sau Sáp Nhập: Gợi Mở Cơ Hội Và Chiến Lược Đầu Tư Hiệu Quả

Giải Bài Toán Mua Nhà Cho Giới Công Sở Trước Áp Lực Lãi Suất Vay Tăng

Lãi Suất Thả Nổi Tăng, Vì Sao Nhiều Người Chưa Chuyển Đổi Gói Vay Mua Nhà?