Mẫu nhà phố 1 trệt 2 lầu có sân thượng với mặt tiền 3,5m được thiết kế theo phong cách hiện đại

Ban nội dung
Được đăng bởi Ban nội dung
Thông tin công trình:
  • Quy mô xây dựng: 1 trệt, 2 lầu có sân thượng
  • Diện tích: 3.5 x 17.5m, tổng diện tích sử dụng 247m2
  • Công năng: 1 phòng khách, bếp, phòng ăn; 5 phòng ngủ; 4 phòng vệ sinh; sân trước, sân sau, và sân thượng
  • Đơn vị thiết kế thi công, trọn gói: Công ty cổ phần Kiến trúc Xây dựng Song Phát
  • Thời gian thi công: 135 ngày

Bản vẽ mặt bằng nhà 1 trệt 2 lầu sân thượng

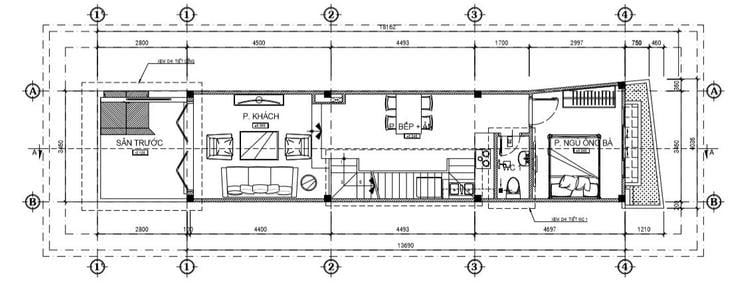
Tầng trệt có sân trước rộng rãi 3.5 x 2,8m để xe, 1 phòng khách 16m2, 1 phòng bếp kết hợp phòng ăn 15m2 cùng 1 phòng vệ sinh chung bố trí ở cạnh cầu thang. Cách bố trí cầu thang chạy dọc nhà và ép sát tường làm không gian tầng trệt trở lên thông thoáng. Phần tiếp giáp giữa phòng khách và cầu thang không xây kín chỉ làm bậc thang và lắp đặt kính không cản trở tầm nhìn trong nhà. Phòng ngủ cho ông bà tại tầng trệt lấy sáng nhờ khoảng thông tầng sân sau.

sơ đồ bố trí mặt bằng tầng trệt
Mặt bằng tầng trệt.

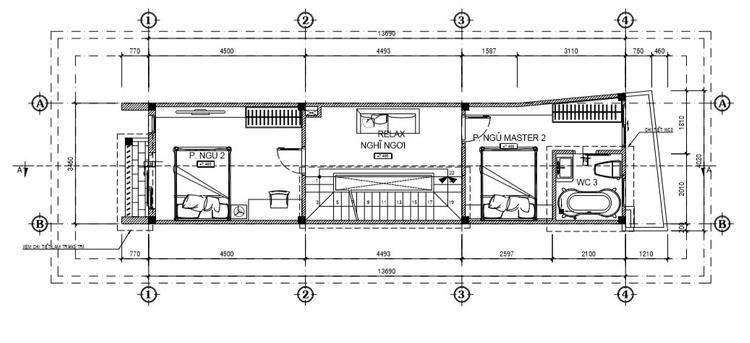
Lầu 1 từ cầu thang bước lên là khu vực làm việc có kệ sách, hai phòng ngủ lớn trước và sau đón ánh sáng nhờ ban công và sân sau. Phòng ngủ master có kèm nhà vệ sinh với buồng tắm vách kính.

sơ đồ bố trí mặt bằng lầu 1
Mặt bằng lầu 1.

Lầu 2 cũng bố trí 2 phòng ngủ tương tự như lầu 1. Phòng ngủ phía trước có bàn làm việc riêng, đầy đủ trang thiết bị như tivi, tủ quần áo. Riêng phòng ngủ phía sau được trang bị nhà vệ sinh với bồn tắm nằm hiện đại.

sơ đồ bố trí mặt bằng lầu 2
Mặt bằng lầu 2.

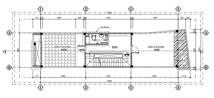
Sân thượng hay mái che thang có nhà vệ chung giải quyết phần nào nhu cầu sinh hoạt cá nhân khi vào giờ cao điểm. Ngoài tạo độ thông thoáng, mát mẻ cho ngôi nhà, sân thượng cũng là nơi hong khô quần áo.

sơ đồ bố trí mặt bằng sân thượng
Mặt bằng sân thượng.

Mặt tiền nhà phố 1 trệt 2 lầu có sân thượng

Nhà phố 1 trệt 2 lầu có sân thượng được phối cảnh độc đáo theo phong cách hiện đại. Lối thiết kế này phù hợp với phương án mặt bằng của ngôi nhà. Ban công giật cấp, cửa sổ hất một cánh cùng hệ lam nhôm giả gỗ kéo dài từ tầng 3 lên sân thượng mang đến vẻ đẹp khác biệt so với những ngôi nhà lân cận.

bản vẽ 3D mặt tiền nhà 1 trệt 2 lầu có sân thượng
Phối cảnh mặt tiền nhà 1 trệt 2 lầu có sân thượng.

Phối cảnh nội thất cho ngôi nhà

Phối cảnh nội thất giúp gia chủ dễ dàng hình dung ngôi nhà sau khi hoàn thiện sẽ ra sao, cách bố trí nội thất như thế nào… giúp quá trình thi công, hoàn thiện nội thất diễn ra thuận lợi hơn.
phòng khách nhà phố
Phòng khách sang trọng với mảng tường ốp PVC giả đá vân mây. Đây là vật liệu được ưa chuộng trong không gian nhà phố hiện đại. Mảng tường sau sofa được tô điểm bằng bản đồ thế giới vật liệu gỗ. Tủ TV mang sắc trầm hài hòa với tổng thể.
cầu thang sắt xương cá bậc gỗ
Cầu thang sắt xương cá bậc gỗ được bố trí áp sát tường nhằm hạn chế chiếm diện tích không gian. Đây là thiết kế cầu thang có chi phí thấp hơn so với cầu thang bê tông cốt thép mà vẫn đảm bảo được độ bền chắc.
bếp trong nhà phố
Bếp được trang bị đầy đủ các vật dụng cần thiết. Tủ bếp gỗ bề mặt acrylic, mặt bếp ốp đá granite, tường ốp mica xanh vừa thẩm mỹ, vừa bảo vệ nội thất khỏi dầu mỡ và hơi nước.
phòng ngủ master
Phòng ngủ master sử dụng sắc trắng chủ đạo để dễ kết hợp đồ nội thất. Mọi vật dụng trong phòng đều được kiến trúc sư tính toán kỹ lưỡng về kích thước cho phù hợp với diện tích phòng.
nội thất gỗ trong phòng ngủ
Nội thất gỗ màu nâu sẫm đồng màu với sàn gạch giả gỗ công nghiệp kích thước 150x800mm mang lại cảm giác ấm cúng, thân thiện.
rèm cửa 2 lớp
Rèm cửa sổ 2 lớp cho phép điều chỉnh lượng ánh sáng tùy theo nhu cầu.
phòng ngủ phía sau lầu 1
Phòng ngủ phía sau ở lầu 1 có diện tích không quá rộng nhưng vẫn đầy đủ các vật dụng cần thiết như tủ quần áo, bàn học, kệ tủ sách…

phòng ngủ đẹp
Một mẫu thiết kế phòng ngủ tại lầu 2.

phòng ngủ thứ 4 trên lầu 2
Phòng ngủ thứ 4 trên lầu 2.

tấm PVC trang trí tường
Kiến trúc sư sử dụng các tấm PVC làm điểm nhấn để trang trí cho khoảng tường trống trải trong phòng ngủ.

Ngôi nhà phố được hoàn thiện với chi phí 1,5 tỷ đã bao gồm nội thất tủ bếp, tủ quần áo và giường ngủ.

Khánh An

Link nguồn: http://thanhnienviet.vn/2020/05/12/mau-nha-pho-1-tret-2-lau-co-san-thuong-voi-mat-tien-3-5m-duoc-thiet-ke-theo-phong-cach-hien-dai
Tuyên bố miễn trừ trách nhiệm: Thông tin được cung cấp chỉ mang tính chất thông tin chung, Công ty cổ phần PropertyGuru Việt Nam không đưa ra bất kỳ tuyên bố hoặc bảo đảm nào liên quan đến thông tin, bao gồm nhưng không giới hạn bất kỳ sự tuyên bố hoặc bảo đảm về tính thích hợp cho bất kỳ mục đích cụ thể nào của thông tin theo phạm vi cho phép tối đa của pháp luật. Mặc dù đã nỗ lực để đảm bảo rằng thông tin được cung cấp trong bài viết này là chính xác, đáng tin cậy và hoàn chỉnh vào thời điểm đăng tải, nhưng thông tin được cung cấp trong bài viết này không nên được dựa vào để đưa ra bất kỳ quyết định tài chính, đầu tư, bất động sản hoặc pháp lý nào. Thêm vào đó, thông tin không thể thay thế lời khuyên từ một chuyên gia được đào tạo, người mà có thể xem xét, đánh giá các sự kiện và hoàn cảnh cá nhân của bạn, và chúng tôi không chịu bất kỳ trách nhiệm nào nếu bạn sử dụng những thông tin này để đưa ra quyết định.

Bất Động Sản Khánh Hòa Sau Sáp Nhập: Gợi Mở Cơ Hội Và Chiến Lược Đầu Tư Hiệu Quả

Giải Bài Toán Mua Nhà Cho Giới Công Sở Trước Áp Lực Lãi Suất Vay Tăng

Lãi Suất Thả Nổi Tăng, Vì Sao Nhiều Người Chưa Chuyển Đổi Gói Vay Mua Nhà?