Khi tìm đất xây nhà, ai cũng muốn mua được một mảnh đất vuông vắn để dễ dàng thiết kế, xây dựng. Tuy nhiên, nếu vì lý do nào đó mà bạn đã mua miếng đất bị xéo thì đừng vội lo lắng! Vẫn có những cách thiết kế và phương pháp thi công phù hợp để ngôi nhà xây trên đất xéo vẫn đẹp chẳng kém nhà trên đất vuông, thậm chí còn sở hữu nét kiến trúc độc đáo, khác lạ.
Dưới đây là mẫu nhà phố 1 trệt 1 lầu sân thượng do công ty Kiến trúc Xây dựng Song Phát thiết kế cho gia chủ ở quận 2, TP.HCM. Ngôi nhà được xây trên mảnh đất xéo, cổng vào 5,2m và nở hậu 6,5m.
Bản vẽ thiết kế nhà phố trên mảnh đất 5,5 x 14m, bị xéo 1 bên, nở hậu
Mảnh đất có chiều dài lên tới 25m2, tuy nhiên hình dạng không vuông vắn mà bị xéo một bên. Để cân đối không gian, kiến trúc sư đã điều chỉnh độ dày của tường, tạo cảm giác ngôi nhà vuông vức, không xéo, lệch.
Tầng trệt được bố trí một khoảng sân lớn, chiều dài hơn 8m để gia chủ đậu xe tải, đồng thời giảm bớt chi phí xây dựng. Trong nhà, kiến trúc sư cũng bố trí một khoảng diện tích 10m2 làm chỗ để xe máy. Phòng khách rộng hơn 20m2, phần tường bị méo được xây tường gạch dày để cân đối không gian. Do đây là không gian quan trọng trong nhà, nếu thiết kế không khéo, khi bố trí nội thất sẽ nhìn rõ nhược điểm không vuông vắn của căn nhà, ảnh hưởng đến thẩm mỹ.
Bên cạnh đó, tiểu cảnh được bố trí khéo léo cũng giúp che bớt diện tích bị méo, tận dụng làm kho, phòng giặt và một phòng ngủ ở tầng trệt.
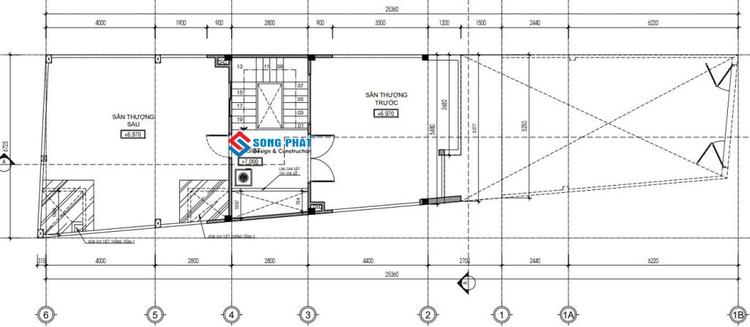
Diện tích lầu trên chỉ khoảng 5,5 x 14m, có 2 phòng ngủ trên 20m2, có phòng vệ sinh riêng. Không gian bên trong đầy đủ ánh sáng nhờ thông tầng và ban công ra tới 1m2. Phòng ngủ rộng rãi có thể bố trí thêm bàn làm việc, bàn trang điểm, kệ ti vi, tủ quần áo,…

Lầu 1 có 2 phòng ngủ và phòng sinh hoạt chung.
Ngôi nhà 1 trệt 1 lầu sân thượng này có chiều cao từ trệt lên sân thượng chỉ 7m nên với độ rộng của thông tầng cầu thang, ánh sáng tự nhiên chan hòa khắp trong nhà.

Mặt bằng sân thượng
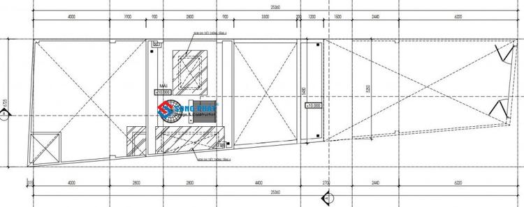
Mặt bằng mái bê tông cốt thép
Mẫu nhà phố 1 trệt 1 lầu sân thượng rất được ưa chuộng trong những năm gần đây vì thiết kế này vừa đủ không gian sinh hoạt, đảm bảo độ thông thoáng mà chi phí xây dựng không quá cao. Khoảng diện tích bị xéo cũng không gây ảnh hưởng quá nhiều đến mặt tiền.

Mặt tiền thiết kế đơn giản với bồn hoa, lan can kính, trang trí bằng gỗ conwood cho phần seno sân thượng cùng lam nhôm giả gỗ.

Với thiết kế này, ngôi nhà phố xây trên đất xéo cũng đẹp chẳng kém so với các công trình tương tự trên đất vuông vắn.
Tư vấn thông tin và hình ảnh: Kiến trúc Xây dựng Song Phát
Biên tập: Hương Liên
Link nguồn: http://thanhnienviet.vn/2020/11/19/mau-thiet-ke-nha-pho-tren-dat-xeo-dep-khong-kem-dat-vuong
Tuyên bố miễn trừ trách nhiệm: Thông tin được cung cấp chỉ mang tính chất thông tin chung, Công ty cổ phần PropertyGuru Việt Nam không đưa ra bất kỳ tuyên bố hoặc bảo đảm nào liên quan đến thông tin, bao gồm nhưng không giới hạn bất kỳ sự tuyên bố hoặc bảo đảm về tính thích hợp cho bất kỳ mục đích cụ thể nào của thông tin theo phạm vi cho phép tối đa của pháp luật. Mặc dù đã nỗ lực để đảm bảo rằng thông tin được cung cấp trong bài viết này là chính xác, đáng tin cậy và hoàn chỉnh vào thời điểm đăng tải, nhưng thông tin được cung cấp trong bài viết này không nên được dựa vào để đưa ra bất kỳ quyết định tài chính, đầu tư, bất động sản hoặc pháp lý nào. Thêm vào đó, thông tin không thể thay thế lời khuyên từ một chuyên gia được đào tạo, người mà có thể xem xét, đánh giá các sự kiện và hoàn cảnh cá nhân của bạn, và chúng tôi không chịu bất kỳ trách nhiệm nào nếu bạn sử dụng những thông tin này để đưa ra quyết định.