Không khí Hà Nội ngày càng ô nhiễm, môi trường sống của mỗi chúng ta đang bị đe dọa. Hàng ngày chúng ta tiếp xúc với quá nhiều thứ độc hại, từ ngoài đường tới cơ quan… Việc sử dụng những vật liệu an toàn, các sản phẩm an toàn cho sức khỏe, đạt tiêu chuẩn CO, CQ (chứng nhận xuất xứ và chứng nhận chất lượng), nói không với sơn công nghiệp chứa fomandehit trong thiết kế nội thất giúp kiến tạo nên không gian sống an toàn, để mọi người cảm thấy thật sự thoải mái và hạnh phúc mỗi khi trở về. Căn hộ 6th Element đã được cải tạo thành một không gian đáng sống và an toàn, thân thiện với thiên nhiên như vậy.
 |
| Liền kề ngay lối vào là góc ăn uống và khu tập đàn. Cây xanh hiện diện ở khắp mọi nơi trong căn hộ mang lại cảm giác mát mẻ, gần gũi với thiên nhiên. |
Kiến trúc sư lựa chọn phong cách Scandinavian (phong cách Bắc Âu) nhằm mang đến sự cân bằng hài hòa giữa vẻ đẹp tự nhiên của vùng gia lạnh và sự tiện dụng trong thiết kế. Phong cách này tập trung vào yếu tố đơn giản, sự tối giản với các chức năng nội thất nhà ở mang lại. Phong cách còn thể hiện những ứng dụng tuyệt vời nhờ sử dụng hiệu quả và sáng tạo nguồn nguyên vật liệu tự nhiên có sẵn để tô điểm cho không gian sống.
 |
| Phòng khách sử dụng gam màu trắng và xanh oliu dịu mắt, giúp cho không gian được trở nên rộng rãi và thoáng rộng hơn. Sofa tông xám nhẹ nhàng cùng bàn trà kép và cây xanh được kết hợp một cách tinh tế, mang đến hơi thở mới cho căn phòng. |
 |
| Tranh bộ trang trí theo chủ đề thiên nhiên tạo nên tổng thể có tính gắn kết cao. Ngoài vai trò trang trí, những chậu cây xanh còn có tác dụng hấp thụ các chất độc hại, tạo nên bầu không khí trong lành. |
 |
| Thiết kế kệ tivi đơn giản, làm bằng chất liệu gỗ tự nhiên được sơn decor; tivi được treo lên tường nhằm tiết kiệm diện tích, giúp phòng khách trở nên rộng rãi hơn. Cửa kính lớn giúp cho căn phòng luôn thông thoáng, đón nhận được tối đa ánh sáng tự nhiên. |
 |
| Phòng ngủ cũng sử dụng màu xanh oliu dịu nhẹ, mang đến cảm giác thoải mái cho chính chủ nhân căn phòng. |
 |
| Giường ngủ làm bằng gỗ tần bì sang trọng, đầu giường được trang trí với vách gỗ sơn xanh tạo ấn tượng thị giác độc đáo. |
 |
| Góc chết trong phòng được khắc phục triệt để bằng hệ kệ tủ trang trí kết hợp tab đầu giường. |
 |
| Không cần trang trí quá cầu kỳ, bệ ngồi cửa sổ nhỏ gọn với thật nhiều cây xanh như thế này thôi cũng đủ khiến người ta cảm thấy yên bình giữa lòng thành phố tấp nập. |

Giá kệ được sử dụng để lưu trữ đồ một cách tiện ích hơn.
 |
| Một phòng ngủ khác được thiết kế với gam xanh pastel dịu nhẹ, kết hợp cùng các chi tiết màu hồng phấn để nhấn nhá. |

Logia cạnh bếp được tận dụng làm khu giặt phơi.

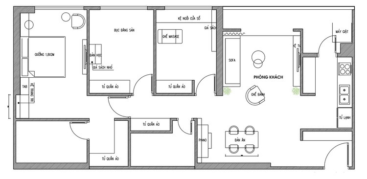
Mặt bằng căn hộ.
Thông tin dự án:
- Căn hộ chung cư 6th Element
- Địa chỉ: Nguyễn Văn Huyên, Hà Nội
- Diện tích sàn: 84m2
- Số phòng: 4 phòng bao gồm 2 phòng ngủ, 1 phòng khách kết hợp bếp, 1 phòng sinh hoạt chung
- Phong cách thiết kế: Scandinavian
- Đơn vị thiết kế: Green Interior
Khánh An
>> Tuyệt chiêu thiết kế nội thất thông minh trong căn hộ nhỏ 30m2
Link nguồn: http://thanhnienviet.vn/2020/05/10/ngam-can-ho-phong-cach-scandinavian-mang-sac-xanh-oliu-diu-mat-giua-trua-he-oi-a
Tuyên bố miễn trừ trách nhiệm: Thông tin được cung cấp chỉ mang tính chất thông tin chung, Công ty cổ phần PropertyGuru Việt Nam không đưa ra bất kỳ tuyên bố hoặc bảo đảm nào liên quan đến thông tin, bao gồm nhưng không giới hạn bất kỳ sự tuyên bố hoặc bảo đảm về tính thích hợp cho bất kỳ mục đích cụ thể nào của thông tin theo phạm vi cho phép tối đa của pháp luật. Mặc dù đã nỗ lực để đảm bảo rằng thông tin được cung cấp trong bài viết này là chính xác, đáng tin cậy và hoàn chỉnh vào thời điểm đăng tải, nhưng thông tin được cung cấp trong bài viết này không nên được dựa vào để đưa ra bất kỳ quyết định tài chính, đầu tư, bất động sản hoặc pháp lý nào. Thêm vào đó, thông tin không thể thay thế lời khuyên từ một chuyên gia được đào tạo, người mà có thể xem xét, đánh giá các sự kiện và hoàn cảnh cá nhân của bạn, và chúng tôi không chịu bất kỳ trách nhiệm nào nếu bạn sử dụng những thông tin này để đưa ra quyết định.