
Nằm ở quận Nhà Bè, TP.HCM, "Ngọc House" được thiết kế cho gia đình nhiều thế hệ, gồm ông bà, bố mẹ và các con.

Nhiệm vụ đặt ra cho kiến trúc sư là tổ chức không gian hợp lý, cho phép nhiều thành viên cùng chung sống dưới một mái nhà, mang lại sự thoải mái, riêng tư nhưng vẫn đảm bảo tính kết nối.

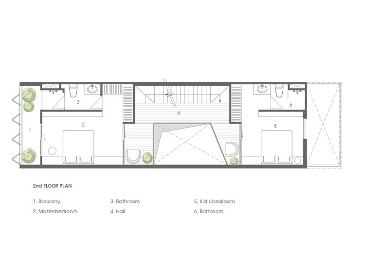
Kiến trúc sư bố trí khoảng thông tầng ngay cạnh lõi thang. Như vậy, các tầng sẽ kết nối với nhau qua cầu thang và qua khoảng thông tầng.

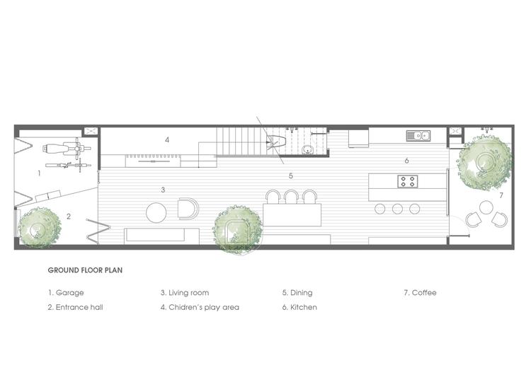
Không gian sinh hoạt chung gồm khu vực tiếp khách, bếp và góc ăn uống nằm ở tầng trệt, liên thông với nhau.

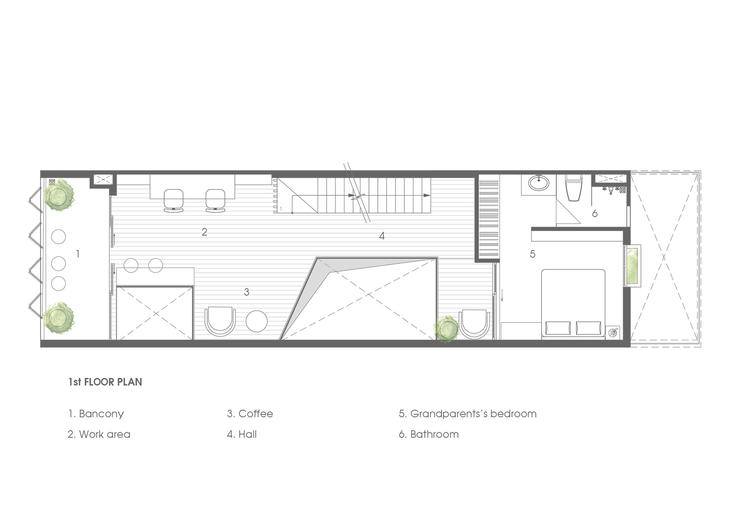
Khoảng chiếu nghỉ cầu thang cũng là sân chơi riêng cho các con.

Bàn ăn được đặt ngay dưới giếng trời nhằm tận dụng ánh sáng tự nhiên vào ban ngày.

Phía sau nhà có khoảng sân lớn để thông gió cho khu vực bếp.
Đây cũng là nơi lý tưởng để đọc báo và nhâm nhi tách cà phê.

Phía trước mỗi phòng ngủ đều có lô gia riêng phục vụ nhu cầu thư giãn.

Khoảng thông tầng ngăn cách giữa hai phòng ngủ nhưng vẫn duy trì kết nối.

Giếng trời còn có nhiệm vụ đưa ánh sáng, gió mát vào trong các phòng ngủ một cách gián tiếp.

An ninh là một trong những vấn đề được đặt lên hàng đầu vì ngôi nhà nằm trong khu dân cư đông đúc. Hệ lam che bao phủ mặt tiền có thể đóng mở tùy ý cho phép tối đa hóa tầm nhìn, trong khi vẫn đảm bảo tính riêng tư cần thiết.

Mặt bằng tầng trệt.

Mặt bằng tầng 1.

Mặt bằng tầng 2.

Mặt bằng tầng 3.

Mặt bằng mái.

Mặt tiền nhà.

Mặt cắt cho thấy hướng gió, ánh sáng và luồng không khí trong nhà.

Mặt cắt B.




