Ngôi nhà gạch gợi nhiều kỷ niệm dành tặng cha mẹ của 6 người con mang tâm hồn nghệ sĩ

Ban nội dung
Được đăng bởi Ban nội dung
Trong dịp Tết Nguyên Đán vừa qua, một gia đình tại TP. Phan Thiết với những thành viên mang tâm hồn nghệ sĩ đã cùng ngồi lại, hàn huyên với nhau về ngôi nhà hơn 33 năm tuổi với nhiều kỷ niệm. Trong cuộc trò chuyện thân tình, một quyết định quan trọng đã được đưa ra: Xây lại nhà cho bố mẹ. Người con trai cả đại diện cho các anh chị em (gồm 3 kiến trúc sư, 2 giám đốc mỹ thuật và 1 giám đốc sáng tạo) để chịu trách nhiệm cho phần thiết kế và kiến trúc của Little Red House – Ngôi nhà nhỏ màu đỏ.

Ngôi nhà phố sở hữu mặt tiền độc đáo, ấn tượng khiến người ta tạm quên đi bề ngang nhỏ hẹp.

Nhằm lưu giữ một phần ký ức, việc tái sử dụng vật liệu của ngôi nhà cũ được tính toán rất kỹ lưỡng. Điển hình là việc lựa chọn những viên gạch tốt nhất từ tường nhà cũ để làm phần mái vòm cho khu vực thờ tự, những thanh xà bằng gỗ tiếp tục được sử dụng làm trần và nội thất gỗ trang trí, trong khi đó, những khung cửa sổ cũ tiếp tục được tái sử dụng cho một vài không gian trong nhà.

Nhằm tái hiện và lưu giữ những ký ức thuở xưa cho cha mẹ, gia chủ quyết định tái sử dụng nhiều vật liệu từ ngôi nhà cũ.

Phần mái vòm cho khu vực thờ tự được xây từ những viên gạch của nhà cũ.

Thanh xà gồ cũ được tận dụng làm trần và nội thất trang trí mang lại cảm giác thân thuộc cho người lớn tuổi.

Không gian nhà được thiết kế theo sở thích và thói quen sinh hoạt hàng ngày của cha mẹ như chăm sóc cây cối và nuôi cá cảnh. Bên cạnh đó, ngôi nhà được bố trí các ô lấy sáng, thông gió, sử dụng các vật liệu thô mộc tạo cảm giác gần gũi với thiên nhiên. Ngôi nhà nhỏ có mặt tiền chỉ 2m, do vậy, việc làm giảm đi cảm giác hẹp ngang của ngôi nhà là rất cần thiết. Sau nhiều lần cân nhắc, đội ngũ thiết kế quyết định tạo ra những đường uốn cong như những đợt sóng của phần mái tôn được đổ bê tông nguyên khối nhằm tạo nên diện mạo khác biệt, độc đáo cho ngôi nhà khi nhìn từ xa, khiến người ta tạm quên đi bề ngang hạn chế của ngôi nhà.

Mái tôn đỏ tươi gợn sóng được tái hiện ở mặt tiền nhà.

Thói quen trồng cây, chăm sóc cá cảnh của cha mẹ được những người con đặc biệt lưu tâm trong thiết kế nhà.

Các ô lấy sáng, thông gió hiện diện ở khắp mọi nơi.

Không gian sinh hoạt chung với những gam màu ấm áp cho những cuộc trò chuyện thân tình.

Kiểu dáng mái vòm xuất hiện ở nhiều vị trí khác nhau trong nhà mang lại vẻ đẹp cổ điển xen lẫn hiện đại.

Những vật liệu trần, thô mộc như gạch nung đỏ…

…hay bê tông trần ở cầu thang mang lại cảm giác giản dị, gần gũi cho ngôi nhà phố.

Các kết cấu chuyên dụng như sàn không dầm, cột dày 100mm cũng được tính toán để giúp tăng không gian cho ngôi nhà. Hệ thống cửa lam gỗ cũng được sử dụng để chủ động đón nắng gió tùy vào từng thời điểm trong ngày và các mùa trong năm.
Và với sự nỗ lực, đồng lòng, quyết tâm thì cuối cùng ngôi nhà đã được hoàn thành như một món quà ý nghĩa mà những người con hiếu thảo dành tặng cha mẹ mình.

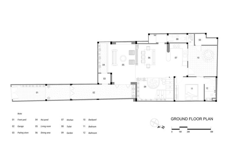
Mặt bằng tầng trệt.

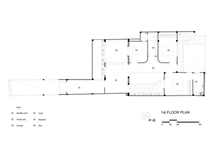
Mặt bằng tầng 1.

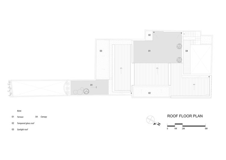
Mặt bằng tầng mái.

Mặt đứng.

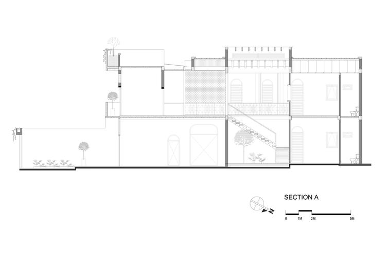
Mặt cắt ngang.

Khánh An

>> Giải pháp thông minh khắc phục triệt để nắng nóng cho nhà ống chính Tây ở Đà Nẵng

Link nguồn: http://thanhnienviet.vn/2022/06/23/ngoi-nha-ga-ch-go-i-nhie-u-ky-nie-m-da-nh-ta-ng-cha-me-cu-a-6-nguo-i-con-mang-tam-ho-n-nghe-si
Tuyên bố miễn trừ trách nhiệm: Thông tin được cung cấp chỉ mang tính chất thông tin chung, Công ty cổ phần PropertyGuru Việt Nam không đưa ra bất kỳ tuyên bố hoặc bảo đảm nào liên quan đến thông tin, bao gồm nhưng không giới hạn bất kỳ sự tuyên bố hoặc bảo đảm về tính thích hợp cho bất kỳ mục đích cụ thể nào của thông tin theo phạm vi cho phép tối đa của pháp luật. Mặc dù đã nỗ lực để đảm bảo rằng thông tin được cung cấp trong bài viết này là chính xác, đáng tin cậy và hoàn chỉnh vào thời điểm đăng tải, nhưng thông tin được cung cấp trong bài viết này không nên được dựa vào để đưa ra bất kỳ quyết định tài chính, đầu tư, bất động sản hoặc pháp lý nào. Thêm vào đó, thông tin không thể thay thế lời khuyên từ một chuyên gia được đào tạo, người mà có thể xem xét, đánh giá các sự kiện và hoàn cảnh cá nhân của bạn, và chúng tôi không chịu bất kỳ trách nhiệm nào nếu bạn sử dụng những thông tin này để đưa ra quyết định.

Năm 2026 Tuổi Nào Làm Nhà Đẹp Nhất? Tất Tật Thông Tin Về Xem Tuổi Làm Nhà 2026

Mệnh Hỏa Hợp Màu Gì? Những Màu Sắc Mang Lại May Mắn, Tài Lộc Cho Người Mệnh Hỏa

Thách Thức Lãi Suất Với Người Mua Nhà: Nên Mua Ngay Hay Chờ Đợi?