 |
| Ngôi nhà 3 tầng được xây dựng trên miếng đất hình ống 76m2 (4,5x17m) thuộc khu đô thị ở Thanh Hóa, xung quanh là những ngôi nhà phố điển hình với kiến trúc tẻ nhạt. |
 |
| Đây là nơi ở của gia đình 4 người, gồm cặp vợ chồng trẻ cùng hai đứa con nhỏ. |
 |
| Mong ước của chủ nhà là một công trình khác biệt so với những ngôi nhà lân cận, đồng thời phải thúc đẩy sự tương tác giữa các thành viên trong gia đình. |
 |
| Do đó, các kiến trúc sư tập trung vào 3 điểm chính: Thiết kế mặt tiền cởi mở, bắt mắt; tạo ra nhiều không gian kết nối các thành viên trong gia đình và đưa cây xanh vào không gian sống. |
 |
| Lưới thép vuông bao bọc mặt tiền nhà không chỉ có chức năng che chắn mà còn tạo điểm nhấn hình ảnh, giúp ngôi nhà vừa an toàn, riêng tư mà vẫn thông thoáng, gắn kết với môi trường bên ngoài. Ngôi nhà lúc này trông giống như một chiếc lồng chim khổng lồ giữa khu phố. |
 |
| Cấu trúc dạng lưới làm từ các thanh thép tròn đường kính 10mm vừa chắc chắn mà không cản trở tầm nhìn. Từ trong nhà, cư dân có thể dễ dàng quan sát hoạt động và thế giới tự nhiên bên ngoài. |

Từ tầng 2 lên tầng 3, người ta có thể dễ dàng bắt gặp rất nhiều lưới thép mảnh dẻ nhưng vô cùng chắc chắn.
 |
| Trong nhà có rất nhiều không gian sinh hoạt chung gắn kết các thành viên trong gia đình. Gác lửng nằm giữa tầng một và tầng hai đóng vai trò như phòng sinh hoạt gia đình, nơi các thành viên quây quần bên nhau, cùng chia sẻ những buồn vui trong cuộc sống. |
 |
| Giếng trời mang ánh sáng tự nhiên vào nhà, cho phép thông gió diễn ra, đảm bảo các không gian bên trong luôn thoáng đãng, sáng sủa. |
 |
| Cây xanh cũng được hiện diện ở cả phía trước và phía sau, mang lại vẻ đẹp thanh mát cho ngôi nhà giữa vùng đất chịu nhiều nắng nóng của xứ nhiệt đới. |
 |
| Khoảng vườn nhỏ xanh mát phía trước tầng hai với những khóm trúc, cây leo kết hợp cùng lưới thép trắng mang đến một diện mạo bắt mắt cho mặt tiền. |
 |
| Chủ đề lồng chim xuất hiện ở mọi chi tiết trong nhà, từ mặt tiền bao bọc bởi lớp lưới thép ô vuông, cửa ra vào cho đến những chiếc đèn tre đan tay trong phòng khách. |
 |
| Đèn thả trần đan thủ công gợi liên tưởng tới hình ảnh đàn chim đang rủ nhau bay về tổ. |

Tầng 1 gồm sân để xe, phòng khách, phòng vệ sinh, bếp kết hợp phòng ăn, nhà kho dưới cầu thang.

Tầng lửng để bố trí phòng sinh hoạt gia đình.

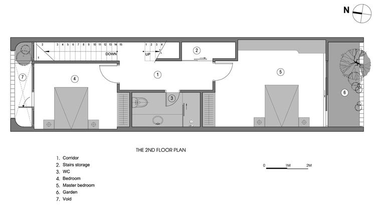
Tầng 2 với 2 phòng ngủ, phòng vệ sinh, ban công, nhà kho.

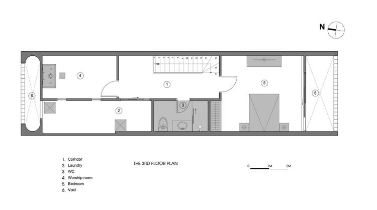
Trên tầng 3 có 1 phòng ngủ, phòng vệ sinh, phòng thờ.

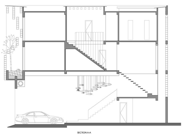
Mặt cắt nhà.

Bản vẽ mặt tiền.
Thông tin dự án:
- Thiết kế: T – architects
- Tổng diện tích sàn: 240m2
- Năm hoàn thành: 2020
- Nhiếp ảnh: Tana
- Kiến trúc sư trưởng: Ton Ton
- Nhóm thiết kế: Tuan Anh, Linh Nguyen, Huu Dan
- Chủ nhà: Anh Cường, chị Hảo
Minh Châu
>> Những mẫu nhà phố 2 tầng được dự đoán sẽ lên ngôi trong năm tới
Link nguồn: http://thanhnienviet.vn/2020/04/08/nha-3-tang-nhu-chiec-long-chim-noi-bat-giua-khu-pho
Tuyên bố miễn trừ trách nhiệm: Thông tin được cung cấp chỉ mang tính chất thông tin chung, Công ty cổ phần PropertyGuru Việt Nam không đưa ra bất kỳ tuyên bố hoặc bảo đảm nào liên quan đến thông tin, bao gồm nhưng không giới hạn bất kỳ sự tuyên bố hoặc bảo đảm về tính thích hợp cho bất kỳ mục đích cụ thể nào của thông tin theo phạm vi cho phép tối đa của pháp luật. Mặc dù đã nỗ lực để đảm bảo rằng thông tin được cung cấp trong bài viết này là chính xác, đáng tin cậy và hoàn chỉnh vào thời điểm đăng tải, nhưng thông tin được cung cấp trong bài viết này không nên được dựa vào để đưa ra bất kỳ quyết định tài chính, đầu tư, bất động sản hoặc pháp lý nào. Thêm vào đó, thông tin không thể thay thế lời khuyên từ một chuyên gia được đào tạo, người mà có thể xem xét, đánh giá các sự kiện và hoàn cảnh cá nhân của bạn, và chúng tôi không chịu bất kỳ trách nhiệm nào nếu bạn sử dụng những thông tin này để đưa ra quyết định.