![]() |
| Nhà An được thiết kế cho gia đình 3 thế hệ, thể theo mong ước của người con là gìn giữ, kế thừa ngôi nhà của tổ tiên 60 năm tuổi, nơi ông bà, cha mẹ và con cháu tụ tập vào cuối tuần. |
![]() |
| Không gian trong nhà của An được thiết kế theo bố cục nhà truyền thống với phần nhà thờ ba gian (được phục dựng lại từ ngôi nhà cũ ra đời trong những năm 1980) và nhà ở nối liền bằng hành lang mở, ngăn cách bởi khoảng đệm là hồ nước. |
![]() |
| Ngôi nhà giống như một ốc đảo trên khu vườn 2.000m2, đóng mở tích cực để lấy gió từ bên ngoài và hoàn toàn mở vào bên trong hồ nước trung tâm. |
![]() |
| Hồ nước trung tâm giống như khoảng đệm ngăn cách giữa hai không gian, cũng đóng vai trò kết nối không gian trong nhà với ngoài trời. |

Không gian thờ cúng trang nghiêm.
![]() |
| Bếp và phòng khách là những khu vực chuyển tiếp giữa phòng thờ và khu nhà ở. |
![]() |
| Hành lang và phòng khách là những không gian mở bên trong hoàn toàn, nối liền phòng ngủ của ông bà, bố mẹ và các cháu. |
![]() |
| Các phòng ngủ vẫn giữ được sự riêng tư cần thiết và kết nối với không gian sinh hoạt chung như hành lang, hồ nước, sân trong, phòng ăn, bếp, tạo không gian liên lạc chặt chẽ giữa các thành viên. |
![]() |
| Hầu hết đồ nội thất bằng gỗ trong nhà đều có tuổi đời ngót nghét nửa thế kỷ, được truyền từ các thế hệ trước và được bảo quản như báu vật gia đình. |

Nhà được bao quanh bởi cánh đồng lúa và đất trồng dưa. Một nơi yên bình đúng như mong muốn của chủ nhà.

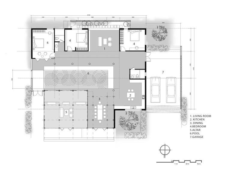
Sơ đồ bố trí mặt bằng nhà.

Mặt cắt nhà.

Mặt cắt phía Bắc.
Thông tin dự án:
- Tên dự án: Nhà An
- Đơn vị thiết kế: G+ Architects
- Diện tích: 2000m2
- Năm hoàn thành: 2019
- Địa điểm: Lộc An , Lộc Hưng, Trảng Bàng, Tây Ninh
- Hình ảnh: Quang Trần
- Kiến trúc sư: Đoàn Bằng Giang, Hoàng Duy, Nguyện Minh Quân, Nguyễn Vũ Hải, Nguyễn Hương, Nguyễn Phương Khánh
- Kỹ sư: Nguyễn Khắc Lưu
- Thi công: Thợ địa phương
Minh Châu (dịch từ Archdaily)
Link báo gốc: http://thanhnienviet.vn/2019/12/24/nha-ba-gian-ke-thua-va-phat-huy-net-kien-truc-nong-thon-nam-bo












