Công trình “Nhà của Gió” bắt nguồn từ câu chuyện tình yêu lãng mạn của vợ chồng gia chủ, người chồng cũng chính là kiến trúc sư chủ trì thiết kế. Họ yêu nhau từ những những ngày còn là học sinh cấp 3 với bao mơ ước, hoài bão. Hết năm cuối cấp, chàng trai theo gia đình chuyển vào Sài Gòn sinh sống, gửi lại mảnh đất Đà Nẵng nhiều kỷ niệm đẹp của mối tình đầu. Dù xa nhau hàng trăm km, cặp đôi vẫn viết tiếp chuyện tình của mình bằng những dòng tin nhắn, những cuộc gọi thâu đêm suốt sáng. Họ gửi tình yêu và nỗi nhớ nhung vào những cơn gió, mong gió sẽ mang tới người thương nơi phương xa. Thế rồi sau gần 10 năm xa cách, chàng trai quyết định trở về chốn cũ, cùng cô gái anh yêu về chung nhà, xây nên tổ ấm hạnh phúc. Nhà của Gió chính là cái kết đẹp của đôi trẻ, chấm dứt những tháng năm yêu xa đầy khắc khoải. Ngôi nhà được xây cùng năm họ kết hôn, do người chồng cùng các cộng sự thiết kế, lấy cảm hứng từ gió – đúng như tên gọi của công trình. Gió là bài toán đầu tiên cần giải quyết, thiết kế kiến trúc phải đảm bảo gió được lưu thông xuyên suốt trong nhà.

Nhà của Gió gây ấn tượng với mặt tiền màu trắng hài hòa, làm nổi bật tông nâu của cửa gỗ, những mảng tường gạch mộc và màu xanh cây lá. Ngôi nhà là cái kết đẹp của một chuyện tình lãng mạn, được kì vọng là "nơi trái tim sẽ được che chở bởi trái tim, nơi có gió dạo chơi, có gió lắng nghe, cảm thông, chia sẻ với mỗi người."
Mái nhà được thiết kế vuốt cong, gợi liên tưởng đến những cơn gió cuộn mình cuốn đi rồi lại trở về. Các chi tiết cong mềm mại như người con gái, góc cạnh mạnh mẽ như người con trai nối tiếp, hòa quyện vào nhau như chuyện tình đẹp của gia chủ.

Đội ngũ thiết kế chia ngôi nhà thành 3 khối chức năng chính tách rời nhau, ngăn cách bởi cầu thang và khoảng vườn, tạo các khoảng trống đối lưu gió đến từng ngóc ngách trong nhà.
Không gian vườn lớn nằm song song với khu vực làm việc, còn không gian sinh hoạt của gia chủ được đặt ngang sau nhà. Để hạn chế hiệu ứng khô nóng từ gió Phơn đặc trưng của khí hậu miền Trung, các kiến trúc sư đã thiết kế hồ cá Koi đặt trước hướng gió để mang hơi ẩm vào nhà, giúp không khí trong nhà mát mẻ, dễ chịu hơn. Ngoài ra, ngôi nhà còn có các khoảng thông tầng, kết hợp với tiểu cảnh và hệ thống cửa để tạo thành một hệ thống thông gió, đối lưu không khí rất quan trọng trong nhà.

Khoảng sân đầy nắng trước khu vực làm việc của gia chủ kiêm kiến trúc sư.

Hồ cá Koi đặt trước hướng gió vừa tạo cảnh quan, vừa có tác dụng bổ sung hơi nước, giảm nhiệt cho ngôi nhà, nhất là vào mùa hè.

Khoảng sân vườn với đủ loại thực vật mọc xen kẽ nhau, giúp lọc khí, giảm tiếng ồn và giảm hấp thụ nhiệt từ bên ngoài vào trong nhà.

Sân vườn xanh mát với hồ cá Koi sinh động nhìn từ trên cao.

Những dây leo cúc tần Ấn Độ tạo thành "bức rèm xanh" cực ấn tượng cho hiên nhà.

Góc thư giãn đậm chất thiền cạnh hồ cá Koi.

Sự kết hợp giữa các vật liệu truyền thống (gạch thẻ trần, tre, đá tổ ong,…) và vật liệu hiện đại (bê tông, nhôm kính) tạo ra một không gian sống hài hòa, thân thiện, thuận tự nhiên.
Đồng điệu với sự bình lặng bên ngoài, bên trong ngôi nhà cũng được các kiến trúc sư sử dụng vật liệu mộc mạc, gần gũi và hơi hướng hoài cổ. Hệ thống cửa sổ lớn được bố trí ở cả phòng khách và khu bếp giúp tăng diện tích lấy sáng tự nhiên và tăng tính gắn kết giữa không gian sinh hoạt bên trong với không gian thiên nhiên bên ngoài.

Phòng khách ấm cúng với nội thất sử dụng vật liệu tự nhiên như thảm cói, bàn ghế gỗ, vách ngăn bằng tre và phong cách thiết kế mang hơi hướng hoài cổ.
Những khung cửa kích thước lớn ở phòng khách và phòng bếp vừa lấy sáng tự nhiên, vừa tăng cảm giác hòa quyện vào thiên nhiên xung quanh ngôi nhà.

Phòng bếp kết hợp phòng ăn rộng rãi, thoáng mát.

Gia chủ có thể vừa dùng bữa, vừa cảm nhận những cơn gió mát mẻ từ khoảng vườn xanh tươi thổi vào nhà.
Phòng ngủ ấm áp với tông gỗ chủ đạo và điểm nhấn là góc thư giãn bên bậu cửa sổ.
Ánh sáng mặt trời cũng được đảm bảo phân bố hợp lí. Nhờ các khoảng thông tầng và các lớp cửa đóng mở chủ động, ngôi nhà luôn nhận đủ ánh sáng vào ban ngày mà không cần dùng tới đèn chiếu sáng. Qua đó, ngôi nhà nhận được nguồn năng lượng tự nhiên, năng lượng sạch, không phụ thuộc quá nhiều vào nguồn năng lượng hóa thạch, góp phần bảo vệ môi trường.

Các lớp cửa đóng mở chủ động đóng vai trò điều tiết ánh sáng ở mức vừa phải, dịu mắt.

Bức tường "biết thở" bằng gạch lỗ giúp lấy sáng và thông gió cho toàn bộ không gian.

Kiến trúc sư tận dụng linh hoạt cốt cao độ ở các tầng để thiết kế gác xép làm nơi thư giãn, đọc sách, "lẩn trốn" cuộc sống ồn ào bên ngoài. Chiếc máy may cổ điển gợi cảm giác hoài cổ, thời gian như lắng đọng lại trong không gian đặc biệt này.

Gạch kính lấy sáng nhiều màu sắc tạo điểm nhấn cho không gian. Sự thay đổi về hiệu ứng ánh sáng, bóng đổ qua từng thời điểm trong ngày là những biểu đạt khác nhau của thị giác, cảm xúc.

Trong từng đường nét thiết kế, các yếu tố tạo ra không gian mở luôn được chú trọng và sử dụng linh hoạt như hệ thống thông tầng kết hợp cửa lớn, cửa mở, cửa kính,…

Tổng thể ngôi nhà là sự hài hòa giữa con người với thiên nhiên, xen lẫn những không gian hoài niệm, gần gũi.

Hệ thống đèn tạo vẻ lãng mạn cho Nhà của Gió lúc chiều buông.
Từng chi tiết và vật liệu sử dụng trong Nhà của Gió đều được sắp đặt rất tỉ mỉ. Các hình ảnh xuất hiện nối tiếp nhau, ẩn hiện trong những vật dụng hoài cổ, gợi nhớ về một thời đã xa, hiếm thấy trong những căn nhà phố đương đại. Kiến trúc sư kiêm gia chủ quan niệm mỗi công trình kiến trúc là một câu chuyện, hãy để công trình tự kể câu chuyện của chính mình.
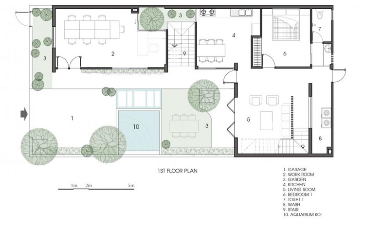
Các bản vẽ thiết kế của công trình:

Mặt bằng tầng 1

Mặt bằng tầng 2

Mặt bằng gác xép

Mặt bằng mái
Thông tin công trình:
- Tên công trình: Nhà của Gió
- Địa điểm: Phạm Xuân Ẩn, Hòa Xuân, Cẩm Lệ, Đà Nẵng
- Diện tích đất: 200m2
- Diện tích xây dựng: 125m2
- Đơn vị thiết kế: Nhà Của Gió – Greenconcept
- Kiến trúc sư chủ trì: Nguyễn Hoàng Việt
- Cộng sự: KTS. Trần Đỗ Hoàng, KTS nội thất Võ Đinh Hùng, KS. Bùi Quang Vũ
- Chủ đầu tư: Văn Trịnh Thảo
- Tổng chi phí: 2 tỷ đồng
- Năm hoàn thành: 2018
- Ảnh: Bùi Minh Quốc
Lan Chi
Link nguồn: http://thanhnienviet.vn/2020/10/20/nha-cua-gio-cai-ket-dep-cho-chuyen-tinh-10-nam-yeu-xa-cua-cap-doi-da-nang
Tuyên bố miễn trừ trách nhiệm: Thông tin được cung cấp chỉ mang tính chất thông tin chung, Công ty cổ phần PropertyGuru Việt Nam không đưa ra bất kỳ tuyên bố hoặc bảo đảm nào liên quan đến thông tin, bao gồm nhưng không giới hạn bất kỳ sự tuyên bố hoặc bảo đảm về tính thích hợp cho bất kỳ mục đích cụ thể nào của thông tin theo phạm vi cho phép tối đa của pháp luật. Mặc dù đã nỗ lực để đảm bảo rằng thông tin được cung cấp trong bài viết này là chính xác, đáng tin cậy và hoàn chỉnh vào thời điểm đăng tải, nhưng thông tin được cung cấp trong bài viết này không nên được dựa vào để đưa ra bất kỳ quyết định tài chính, đầu tư, bất động sản hoặc pháp lý nào. Thêm vào đó, thông tin không thể thay thế lời khuyên từ một chuyên gia được đào tạo, người mà có thể xem xét, đánh giá các sự kiện và hoàn cảnh cá nhân của bạn, và chúng tôi không chịu bất kỳ trách nhiệm nào nếu bạn sử dụng những thông tin này để đưa ra quyết định.