Termitary House (Nhà Gò mối) được xây dựng ở thành phố biển Đà Nẵng. Khí hậu nơi đây khá khắc nghiệt với sự thay đổi rõ rệt giữa mùa khô và mùa mưa. Đời sống người dân cũng chịu ảnh hưởng bởi những cơn bão nhiệt đới hàng năm. Cùng với đó, Đà Nẵng còn nổi tiếng với khu di tích tháp Champa bằng gạch nung (có từ thời kỳ Vương quốc Champa cổ đại). Trong đó, thánh địa Mỹ Sơn là địa danh nổi tiếng nhất.

Nhà Gò mối cần thích nghi được với điều kiện khí hậu khắc nghiệt của miền Trung.

Lớp vỏ gạch nung đỏ tươi khiến ngôi nhà nổi bật so với những công trình lân cận.

Lối vào đơn giản, mộc mạc.
Lấy cảm hứng từ khả năng làm tổ đặc biệt của loài mối tại địa phương, kiến trúc sư đã thiết kế ngôi nhà với không gian sinh hoạt chung ở chính giữa, gồm khu vực nấu nướng, bàn ăn và góc giải trí. Hành lang xung quanh dẫn tới các phòng chức năng trong nhà như phòng nghỉ ngơi, phòng khách và phòng ngủ. Tất cả được kết nối với nhau một cách hài hòa, có chủ ý. Tầng lửng có thêm phòng ngủ, phòng thờ và một thư viện nhỏ.

Góc thư giãn, tiếp khách liền kề ngay lối vào.

Không gian sinh hoạt chung với góc nấu nướng và bàn ăn.

Ở tầng 1 hầu như không có sự phân tách giữa các khu vực chức năng.

Cầu thang kết nối tầng 1 với gác mái.

Phòng thờ.
Gác mái là không gian thư giãn mở, bao phủ bởi lớp rèm dây leo. Được thiết kế cho gia đình ba người, ngôi nhà không cần phân tách quá nhiều, ngoại trừ phòng thờ và phòng ngủ. Trong khi đó, tại khu vực sinh hoạt chung, các thành viên có thể dễ dàng nhìn thấy và trò chuyện với nhau thông qua những bức tường với những lỗ hổng được sắp xếp ngẫu nhiên nhưng khoa học giống như một tổ mối thực sự.

Các thành viên trong gia đình có thể giao tiếp với nhau một cách dễ dàng thông qua những "lỗ hổng" trên tường.
Nhà được xây từ gạch nung, vật liệu truyền thống tại địa phương. Đây cũng là vật liệu được sử dụng để xây dựng lên các tòa tháp Champa huyền bí. Trần nhà được đúc bằng bê tông thô, sàn láng xi măng màu tối. Toàn bộ nội thất đều làm bằng gỗ của mái nhà cũ, giúp tiết kiệm đáng kể chi phí (chi phí xây dựng và hoàn thiện chỉ khoảng 500 triệu đồng).
Tường gạch nung với cách sắp đặt độc đáo cùng đặc tính giữ ẩm của gạch giúp ngôi nhà luôn mát mẻ vào mùa hè. Kỹ thuật thiết kế hai lớp vỏ bao che với tường gạch nung bên ngoài và tường kính khung nhôm bên trong tạo nên khoảng đệm ở giữa, đóng vai trò như lớp cách nhiệt.

Hai lớp tường giữ cho nhiệt độ trong nhà luôn ổn định.
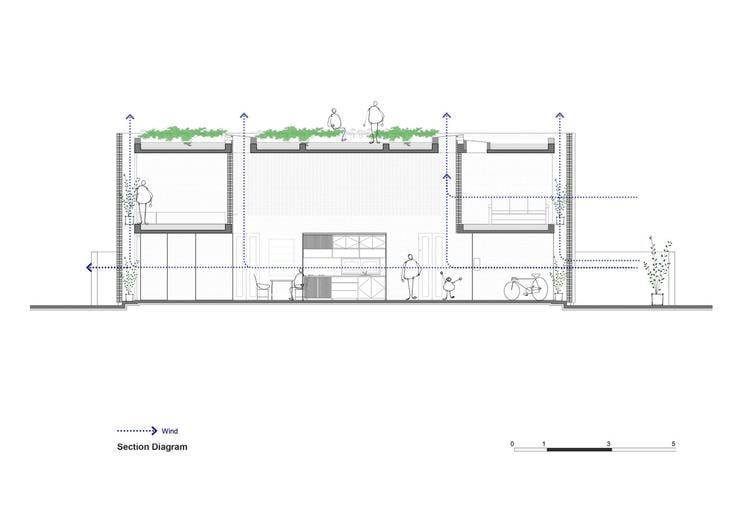
Ngoài ra, cách bố trí nhà vệ sinh và nhà kho dọc theo bức tường không chỉ giúp cản gió lớn trong suốt mùa bão mà còn dẫn gió đi thẳng lên các khoảng trống trên mái nhờ chênh lệch áp suất.
Kiến trúc sư đã sử dụng hệ thống dầm và sàn ngược tạo nên một khu vườn nhỏ để trồng cây – một nơi lý tưởng cho phép cả gia đình thư giãn và tận hưởng làn gió mát lành ngày hè trong những ngày nóng nực.
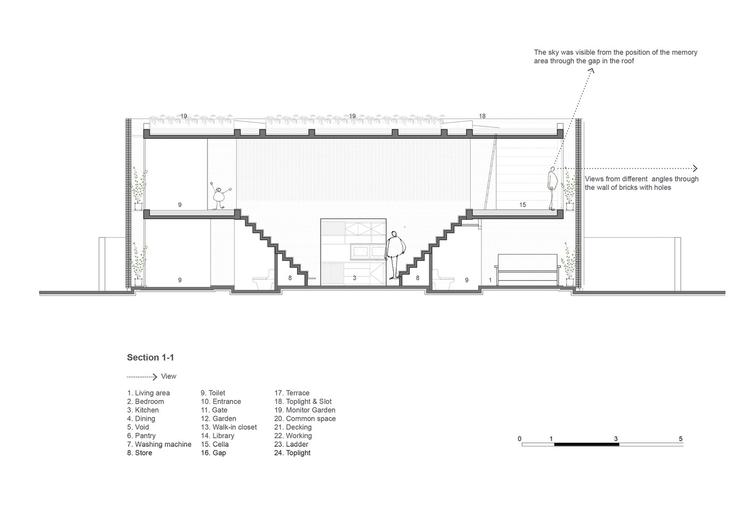
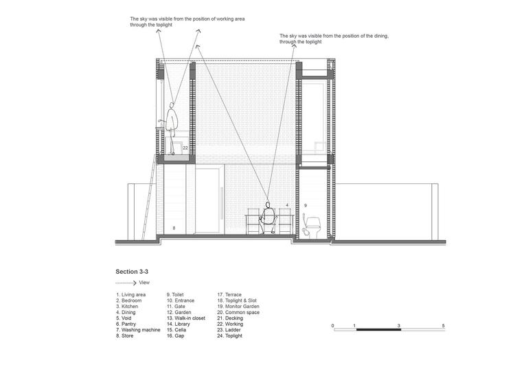
Bức tường gạch nung với rất nhiều lỗ nhỏ kết hợp cùng không gian liên thông cho phép ánh sáng, không khí tươi mới luân chuyển tới từng ngóc ngách của ngôi nhà, thậm chí cả những khu vực khó tiếp cận nhất. Chủ nhà cũng có thể ngắm bầu trời xanh vào ban ngày hay ngắm trăng vào buổi tối ngay khi ngồi ở phòng khách, bàn ăn hay ở trong bếp.
Ở những thời điểm khác nhau trong ngày, sự đa dạng của cường độ ánh sáng xuyên qua các lỗ nhỏ giữa các tầng làm biến thiên màu tường gạch từ đỏ nhạt vào buổi sáng sang đỏ vào buổi trưa, đỏ thẫm vào buổi chiều, đỏ tím vào chiều muộn và sáng sớm. Khi màn đêm buông xuống, ngôi nhà giống như chiếc đèn lổng khổng lồ với những đốm sáng phát ra từ các lỗ trên những bức tường. Bức tường gạch bao quanh được trang trí với những viên gạch nhô ra tạo nên hiện tượng đổ bóng thú vị. Điều này làm tăng thêm vẻ đẹp và nét quyến rũ của những viên gạch thô.

Ánh mặt trời xuyên qua lớp tường rỗng tạo nên bản hòa ca tuyệt vời giữa ánh sáng và bóng tối.

Ngôi nhà giống như một chiếc đèn lồng lung linh tỏa sáng khi đêm xuống.
Cây xanh và sỏi trải sân, vườn đều được tận dụng từ ngôi nhà cũ nhằm gợi nhắc tới những hình ảnh quen thuộc. Tận dụng tốt lợi thế của hệ thống thông gió, hệ thống chiếu sáng và cơ chế điều hòa không khí tự nhiên giúp cho ngôi nhà thích ứng được với điều kiện khí hậu khắc nghiệt nơi miền Trung.

Sơ đồ bố trí mặt bằng tầng 1.

Sơ đồ bố trí mặt bằng tầng 2.

Tầng mái.

Mặt cắt 1-1.

Mặt cắt 2-2.

Mặt cắt 3-3.

Bản vẽ mặt tiền.

Sơ đồ hướng luân chuyển của gió.
Minh Châu (dịch từ Archdaily)
Link nguồn: http://thanhnienviet.vn/2019/11/14/nha-gach-nung-doc-dao-giong-nhu-to-moi-o-da-nang
Tuyên bố miễn trừ trách nhiệm: Thông tin được cung cấp chỉ mang tính chất thông tin chung, Công ty cổ phần PropertyGuru Việt Nam không đưa ra bất kỳ tuyên bố hoặc bảo đảm nào liên quan đến thông tin, bao gồm nhưng không giới hạn bất kỳ sự tuyên bố hoặc bảo đảm về tính thích hợp cho bất kỳ mục đích cụ thể nào của thông tin theo phạm vi cho phép tối đa của pháp luật. Mặc dù đã nỗ lực để đảm bảo rằng thông tin được cung cấp trong bài viết này là chính xác, đáng tin cậy và hoàn chỉnh vào thời điểm đăng tải, nhưng thông tin được cung cấp trong bài viết này không nên được dựa vào để đưa ra bất kỳ quyết định tài chính, đầu tư, bất động sản hoặc pháp lý nào. Thêm vào đó, thông tin không thể thay thế lời khuyên từ một chuyên gia được đào tạo, người mà có thể xem xét, đánh giá các sự kiện và hoàn cảnh cá nhân của bạn, và chúng tôi không chịu bất kỳ trách nhiệm nào nếu bạn sử dụng những thông tin này để đưa ra quyết định.