Trên diện tích đất khiêm tốn, chủ nhà mong muốn ngôi nhà ống phải có đủ các công năng cho gia đình, gồm:
– Tầng 1: Gara, phòng khách, khu bếp kết hợp phòng ăn, vườn nhỏ.
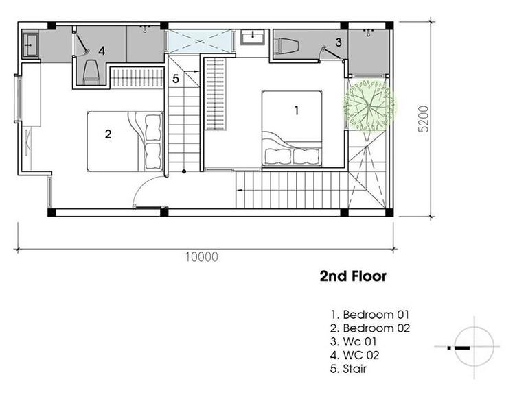
– Tầng 2: 2 phòng ngủ, 2 phòng vệ sinh riêng.
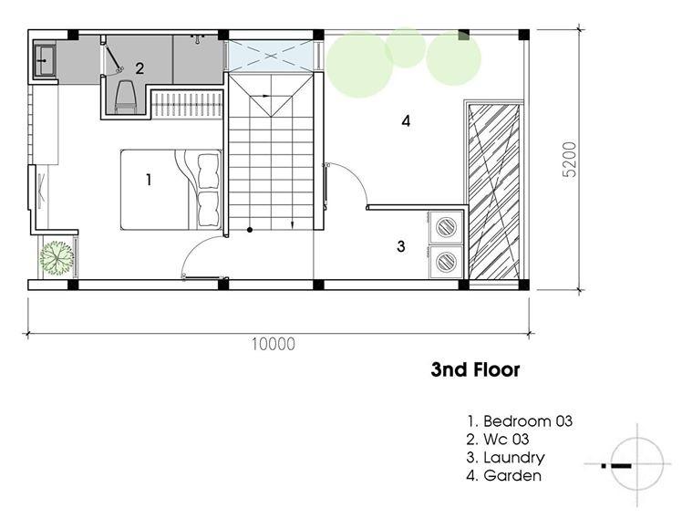
– Tầng 3: 1 phòng ngủ, phòng giặt, sân vườn.
Với tính cách riêng, chủ nhà muốn căn nhà phải chỉn chu nhất có thể, nhưng cũng thật thông thoáng, gọn gàng, nhẹ nhàng và tối giản, có nắng gió ngập tràn. Chủ nhà ưa lối sống riêng tư nên công trình được thiết kế khép kín với bên ngoài nhưng bên trong là không gian mở liên thông từ khu bếp đến phòng khách và các không gian tầng. Các kiến trúc sư Nhà Của Gió đã sử dụng cây xanh kết hợp cùng các vật liệu tông màu thô mộc gồm gạch đỏ, tường xi măng bên ngoài để vẽ lên một mặt ngoài thật tự nhiên, mộc mạc.
 |
| Ngôi nhà ống sở hữu mặt tiền đơn giản nhưng vẫn ấn tượng với diện tường ốp gạch đỏ để trần, không sơn trát. |
Nội thất bên trong chú trọng vật liệu gỗ là điểm nhấn chính. Toàn bộ tường, nền nhà đều sử dụng tông trắng giúp mở rộng không gian, đồng thời mang đến cảm giác nhẹ nhàng, tối giản. Nhận thấy chủ nhà cũng là người hoài niệm, kiến trúc sư đã lồng ghép, điểm xuyết những vật dụng cũ, gợi nhớ quá khứ.
 |
| Gara dùng gạch nhiều màu là điểm nhấn đầu tiên cho ngôi nhà. Đặc biệt, khu vực này liên thông với không gian nấu nướng tạo điểm khác biệt so với những kiểu nhà ống truyền thống ở Việt Nam. Phòng bếp phải thoáng, cho phép quan sát được những đứa trẻ đang vui chơi. |
 |
| Phòng khách rộng thoáng nằm dưới giếng trời, liên thông với khu bếp. Đây không chỉ là nơi để tiếp khách mà còn có đủ không gian để tụ tập bạn bè khi cần. Khu vực này được thiết kế tối giản, sử dụng gam màu sáng chủ đạo. |

Vị trí cầu thang được thay đổi tùy theo từng tầng nhằm tối ưu diện tích sử dụng.
 |
| Phòng ngủ master có một góc thư giãn cạnh ô cửa sổ lớn để thư giãn, ngắm cảnh. |
 |
| Phòng ngủ sau có cửa sổ lớn nhìn ra ô thông tầng để đón ánh sáng tự nhiên, giúp căn phòng thoáng rộng hơn so với diện tích thực tế. |

Mặt bằng kiến trúc tầng 1.

Mặt bằng kiến trúc tầng 2.

Mặt bằng kiến trúc tầng 3.

Mặt bằng kiến trúc tầng mái.
Điều khiến các kiến trúc sư hài lòng nhất về 45 House là chi phí xây dựng nhà rất phải chăng, phù hợp với khả năng tài chính của vợ chồng trẻ. Sự kết nối không gian bên trong khiến căn nhà trở nên thoáng đãng, rộng rãi nhưng thực chất diện tích xây dựng, diện tích sàn lại khá khiêm tốn.
Thông tin dự án:
- Địa điểm: 45 An Trung 06 , Sơn Trà, Đà Nẵng
- Diện tích khu đất : 5.2x10m
- Tổng diện tích sàn: 135m2
- Chi phí : 750 triệu đồng
- Số tầng: 2,5 tầng
- Đơn vị tư vấn thiết kế và xây dựng: Nhà Của Gió
- Kiến trúc sư chủ trì: Nguyễn Hoàng Việt
- Thời gian thi công: 4 tháng
- Năm hoàn thành 2019
Khánh An
Link nguồn: http://thanhnienviet.vn/2020/05/15/nha-ong-da-nang-ben-ngoai-khep-kin-ben-trong-rong-mo
Tuyên bố miễn trừ trách nhiệm: Thông tin được cung cấp chỉ mang tính chất thông tin chung, Công ty cổ phần PropertyGuru Việt Nam không đưa ra bất kỳ tuyên bố hoặc bảo đảm nào liên quan đến thông tin, bao gồm nhưng không giới hạn bất kỳ sự tuyên bố hoặc bảo đảm về tính thích hợp cho bất kỳ mục đích cụ thể nào của thông tin theo phạm vi cho phép tối đa của pháp luật. Mặc dù đã nỗ lực để đảm bảo rằng thông tin được cung cấp trong bài viết này là chính xác, đáng tin cậy và hoàn chỉnh vào thời điểm đăng tải, nhưng thông tin được cung cấp trong bài viết này không nên được dựa vào để đưa ra bất kỳ quyết định tài chính, đầu tư, bất động sản hoặc pháp lý nào. Thêm vào đó, thông tin không thể thay thế lời khuyên từ một chuyên gia được đào tạo, người mà có thể xem xét, đánh giá các sự kiện và hoàn cảnh cá nhân của bạn, và chúng tôi không chịu bất kỳ trách nhiệm nào nếu bạn sử dụng những thông tin này để đưa ra quyết định.