Đất chữ L mà khéo xây vẫn có nhà ống đẹp như mơ

Ban nội dung
Được đăng bởi Ban nội dung
Ngôi nhà mang tên LVS.house có một sự khác biệt so với các nhà ống khác ở mặt bằng khu đất. Dù bề ngang hẹp nhưng mảnh đất xây nhà lại có một khoảng diện tích rộng rãi ở phần sau, trông giống như chữ L. Điều này mở ra hướng phát triển không gian thú vị cho công trình.

Chủ đầu tư mong muốn toàn bộ không gian sinh hoạt chung hay cá nhân điều mở tối đa và tạo được sự kết nối tốt nhất, ngoài ra cũng có thể quan sát các hoạt động của 2 con ở độ tuổi còn nhỏ.

mặt tiền nhà ống
Mặt tiền đục lỗ tạo nên diện mạo nổi bật cho ngôi nhà ống.

kim loại đục lỗ
Cận cảnh lớp vỏ kim loại đục lỗ bao bọc mặt tiền nhà.

Ngoài giải pháp lệch tầng, kiến trúc sư khai thác ánh sáng, thông gió tự nhiên theo phương đứng. Các khoảng không gian chuyển tiếp hay giếng trời tạo nên các lớp kết nối con người và thiên nhiên.

Với công trình này, kiến trúc sư gần như tối giản trong việc sử dụng vật liệu, mong muốn tìm thấy những thẩm mỹ chân phương của kiến trúc và tạo ra một đời sống mới tích cực, tốt đẹp hơn cho gia đình chủ nhà.

cánh cổng nhà bằng gỗ
Khoảng đệm trước nhà vừa là nơi để xe, vừa có nhiệm vụ ngăn cách ngôi nhà khỏi ồn ào, khói bụi.

phòng khách
Không gian tiếp khách không quá cầu kỳ, chỉ một bộ bàn ghế là đủ.

khu vực bếp, bàn ăn
Khu vực tiếp khách – bếp – khu vực ăn uống liên thông nhau, tạo cảm giác thoáng rộng.

cầu thang
Đá mài/Terrazzo chiếm 90% vật liệu hoàn thiện thể hiện thẩm mỹ chân phương của kiến trúc.

lõi thông tầng
Lõi thông tầng có nhiệm vụ lấy sáng, dẫn dắt gió cùng không khí tươi mới vào sâu trong nhà.

phòng ngủ
Phòng ngủ luôn đón nhận được ánh sáng tự nhiên vào ban ngày từ giếng trời.

phòng vệ sinh
Phòng tắm có cửa sổ mở ra giếng trời nên luôn thông thoáng, khô ráo.

cây xanh cạnh giếng trời
Cây xanh được bố trí có chủ đích tạo nên bầu không khí thư giãn.

cầu thang xoắn ốc
Cầu thang xoắn ốc kết nối tầng thượng với tầng thờ.

mặt tiền nhà ống buổi tối
Mặt tiền đục lỗ tinh xảo biến ngôi nhà thành chiếc đèn lồng khổng lồ tỏa sáng lung linh khi đêm xuống.

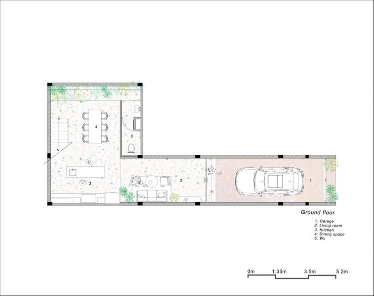
mặt bằng tầng trệt
Mặt bằng bố trí tầng trệt.

mặt bằng tầng 1Mặt bằng bố trí tầng 1.

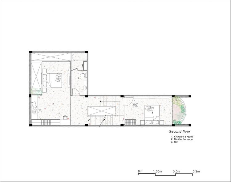
mặt bằng tầng 2Mặt bằng bố trí tầng 2.

mặt bằng tầng thượng
Mặt bằng bố trí tầng thượng.

mặt bằng tầng thờ
Mặt bằng bố trí tầng thờ.

tầng mái
Tầng mái của ngôi nhà.

Thông tin dự án:
  • Tên công trình: LVS.house
  • Địa điểm : Tân Bình, TP.HCM
  • Năm hoàn thành: 2020
  • Nhóm thiết kế: Nguyễn Nhỏ, Phan trọng Hiệp, Đặng Thành Phát, Nguyễn Thanh Hải Nam, Nguyễn Đức Truyền, Hứa Hữu Phước
  • Thi công: Công ty xây dựng Tấn Thanh Hùng
  • Thi công nội thất: Đam San
  • Thi công sắt: Công ty cơ khí Nguyễn Minh
  • Tranh trang trí: Zone V
  • Hình ảnh : Quang Trần
Link nguồn: http://thanhnienviet.vn/2020/11/27/dat-chu-l-ma-kheo-xay-van-co-nha-ong-dep-nhu-mo
Tuyên bố miễn trừ trách nhiệm: Thông tin được cung cấp chỉ mang tính chất thông tin chung, Công ty cổ phần PropertyGuru Việt Nam không đưa ra bất kỳ tuyên bố hoặc bảo đảm nào liên quan đến thông tin, bao gồm nhưng không giới hạn bất kỳ sự tuyên bố hoặc bảo đảm về tính thích hợp cho bất kỳ mục đích cụ thể nào của thông tin theo phạm vi cho phép tối đa của pháp luật. Mặc dù đã nỗ lực để đảm bảo rằng thông tin được cung cấp trong bài viết này là chính xác, đáng tin cậy và hoàn chỉnh vào thời điểm đăng tải, nhưng thông tin được cung cấp trong bài viết này không nên được dựa vào để đưa ra bất kỳ quyết định tài chính, đầu tư, bất động sản hoặc pháp lý nào. Thêm vào đó, thông tin không thể thay thế lời khuyên từ một chuyên gia được đào tạo, người mà có thể xem xét, đánh giá các sự kiện và hoàn cảnh cá nhân của bạn, và chúng tôi không chịu bất kỳ trách nhiệm nào nếu bạn sử dụng những thông tin này để đưa ra quyết định.

Bất Động Sản Khánh Hòa Sau Sáp Nhập: Gợi Mở Cơ Hội Và Chiến Lược Đầu Tư Hiệu Quả

Giải Bài Toán Mua Nhà Cho Giới Công Sở Trước Áp Lực Lãi Suất Vay Tăng

Lãi Suất Thả Nổi Tăng, Vì Sao Nhiều Người Chưa Chuyển Đổi Gói Vay Mua Nhà?