
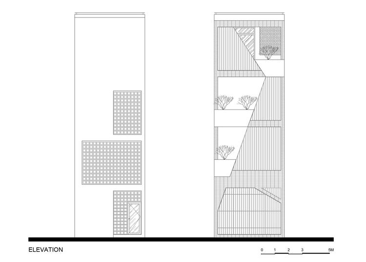
Mặt tiền ngôi nhà được tạo hình tương phản về màu sắc, hình khối và vật liệu tạo ra điểm nhấn rõ ràng hơn.
Logia ở các tầng nằm cạnh bồn hoa mặt tiền được kết nối với nhau thông qua các khoảng trống tầng phía trước mặt tiền tạo ra không gian đệm để nghỉ ngơi, làm việc nhưng vẫn đảm bảo được sự riêng tư đồng thời giúp mở rộng tầm nhìn, cải thiện không gian sống và hạn chế tác động của gió vào ngôi nhà.

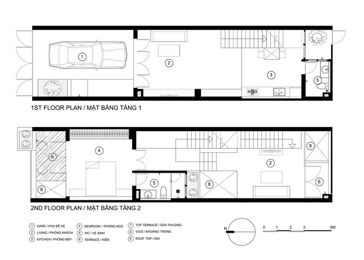
Sân trước vừa là gara để xe, vừa là khoảng đệm với nhiệm vụ ngăn cách khói bụi, tiếng ồn từ bên ngoài.

Không gian khách – bếp liên thông, sử dụng nội thất đơn giản, gần gũi.

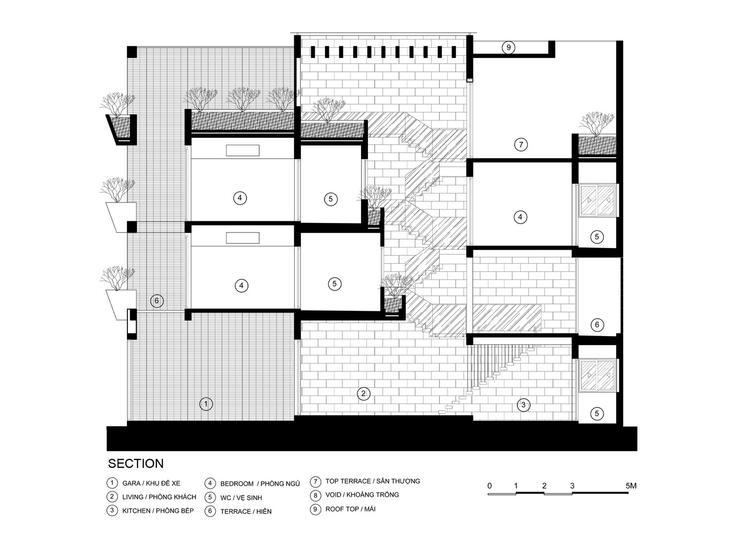
Giếng trời ở giữa nhà có xu hướng mở rộng hơn ở các tầng trên giúp kết nối nhiều không gian, từ WC, phòng ngủ, cầu thang và sân phơi tốt hơn, đồng thời tạo cảm giác mở và gần với thiên nhiên hơn ở các tầng trên, giúp lấy sáng tốt hơn cho các bồn hoa phía dưới và đảm bảo sự đối lưu gió cho không gian giữa nhà.
Con người khi di chuyển trên cầu thang qua các tầng có thể cảm nhận được sự dịch chuyển của cây xanh và có thể quan sát cũng như kết nối dễ dàng với các tầng.
Bồn hoa nằm cạnh WC vừa tạo điểm nhấn, giúp con người quan sát dễ dàng vừa đảm bảo sự riêng tư khi sử dụng ở bên trong.
Do ảnh hưởng của nắng Tây sau nhà và để đảm bảo sự riêng tư với các nhà xung quanh nên toàn bộ không gian phụ gồm WC, giếng trời và sân phơi được đẩy về phía sau nhà để hạn chế sự tác động trực tiếp của nắng đến các không gian sinh hoạt chính, tuy nhiên vẫn đảm bảo sự đối lưu gió và duy trì tầm nhìn từ trong ra ngoài.

Phòng khách trên tầng 2 nằm ở phía cuối nhà.
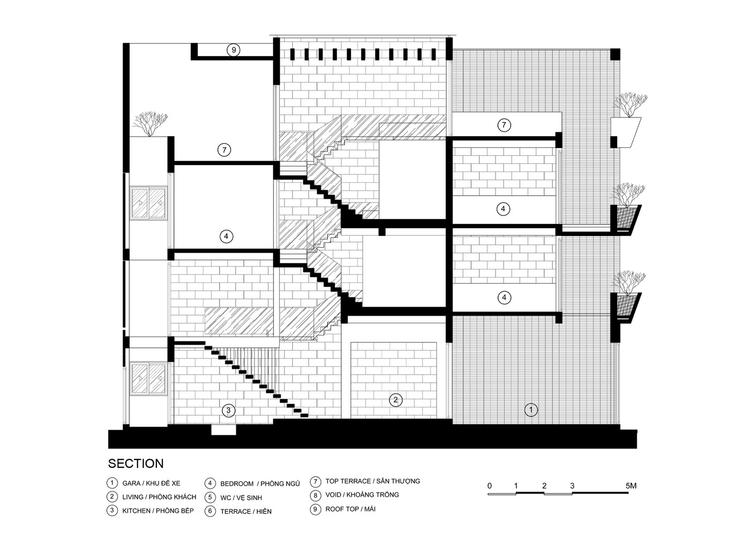
Một giếng trời nhỏ được bố trí phía sau nhà giúp đảm bảo sự cân bằng cảnh quan giữa các tầng, giúp tăng khả năng đối lưu gió, làm mát không gian, tăng tính kết nối và giúp thoát hiểm nhanh hơn khi xảy ra sự cố.

Đây cũng là giải pháp giúp cải thiện cảnh quan, tầm nhìn và không khí trong phòng cho các không gian chính như phòng ngủ và phòng khách phía sau nhà.
Sân chơi và sân phơi nằm ở phía trước và sau ngôi nhà đảm nhận hai nhiệm vụ khác nhau, giúp ngôi nhà thích ứng với các điều kiện thời tiết tốt hơn.

Sân phơi phía sau nhà.

NK Home là tổ hợp những giải pháp thực tế để khắc phục những hạn chế trong nhà phố trong đó kiến trúc sư NDT tập trung vào việc tạo ra nhiều không gian nghỉ ngơi, tăng khả năng thông gió, lấy sáng tự nhiên, cải thiện chất lượng không gian sống trong nhà và truyền cảm hứng sống xanh đến những người trong khu vực.

Bản vẽ mặt bằng tầng 1 và tầng 2.

Bản vẽ mặt bằng tầng 3 và tầng 4.

Mặt cắt.

Mặt cắt 2.

Bản vẽ mặt đứng nhà ống.

Mặt bằng vị trí.
Thông tin dự án:
- Tên dự án: NK Home
- Đơn vị thiết kế: Kiến trúc NDT
- Kiến trúc sư chính: Nguyễn Đăng Tưởng
- Địa điểm xây dựng: Bắc Ninh
- Nhóm thiết kế : Nguyễn Đăng Tưởng, Nguyễn Văn Quang, Ngô Thị Ngà
- Diện tích lô đất: 81m2
- Năm hoàn thành : 2020




