
Giống như nhiều loại hình nhà ống ở Sài Gòn, ngôi nhà mang tên "tổ chim" được xây dựng trên lô đất hẹp (4x12m) thuộc khu phố đông đúc, bao quanh bởi những tòa nhà cao tầng, chỉ có một mặt thoáng duy nhất nhưng lại nằm ở hướng Tây. Chủ nhà đam mê làm vườn, mong muốn hơn hết là một không gian thoáng đãng, thư thái sau một ngày làm việc mệt mỏi với những mảng xanh mát mắt để thỏa mãn mong ước trở về nơi thôn quê.

Để khắc phục những hạn chế nêu trên, đáp ứng mong muốn của gia chủ, đồng thời tăng cường ánh sáng và thông gió tự nhiên, kiến trúc sư quyết định loại bỏ qua tường ngăn trong nhà, sử dụng cây xanh và giếng trời để ngăn cách các không gian chức năng.

Nhà có 3 khoảng trống lớn ở trước, giữa và sau, xuyên suốt 3 tầng, ngăn cách đường phố và ngôi nhà; một giếng sáng trung tâm xuyên suốt hai tầng trên, ngăn cách phòng làm việc với khu vực nghỉ ngơi, ngăn cách sân vườn với nơi thờ tự.
Tương tự, các khoảng vườn nhỏ cũng có vai trò ngăn cách không gian bên trong và bên ngoài, phòng vệ sinh với phòng ngủ, phòng ngủ với cầu thang.

Giải pháp này tạo sự chuyển tiếp không gian nhẹ nhàng trong khi đảm bảo được mọi không gian chức năng đều kết nối với thiên nhiên.

Các vật liệu được sử dụng kết hợp giữa đương đại và truyền thống, gợi nhắc đến không gian quen thuộc của vùng quê Việt: tre, gỗ, kết hợp với kính và thép. Tre là vật liệu tự nhiên rất dồi dào tại địa phương, vừa thân thiện với môi trường, vừa tiết kiệm chi phí.

Tấm mành tre chạy dọc theo chiều dài mặt tiền có nhiệm vụ bảo vệ toàn bộ ngôi nhà khỏi ánh nắng hướng Tây gay gắt, duy trì tính riêng tư cao và cho phép thông gió tự nhiên.
Vách chắn gió bằng sắt CNC họa tiết lá cây, một phiên bản cách điệu của tấm bình phong truyền thống, đóng vai trò như như một thiết bị đối lưu ánh sáng và không khí.

Vách CNC còn được sử dụng làm lam che nắng ban công, cửa cổng ra vào. Tất thảy tạo nên cảm giác ngôi nhà như một tổng thể vừa mở, vừa kết nối.
Ở khu vực giếng trời sân sau, trần tre phía trên cầu thang vừa có vai trò che nắng, vừa tạo sự kết nối trực quan với mặt tiền. Nắng, gió xuyên qua trần, tạo nên hiện tượng đổ bóng thú vị và những âm thanh vui tai như tiếng chuông gió treo trong vườn.
Thay vì sử dụng bê tông, kiến trúc sư lựa chọn sắt tấm cho các cấu kiện kiến trúc như cầu thang, chậu cây, ban công, lam che nắng nhằm giảm trọng lượng kết cấu. Lối kiến trúc đặc biệt khiến mọi thứ như đang lơ lửng trong không trung.

Sắt tấm tiếp tục được sử dụng cho khu vực thay thế, thờ cúng – không gian quan trọng nhất trong nhà.

Khi đêm xuống, ánh sáng từ trong nhà xuyên qua những khe hở giữa những thân tre và những vết cắt trên vách CNC khiến ngôi nhà tựa như một chiếc đèn lồng khổng lồ giữa khu phố.

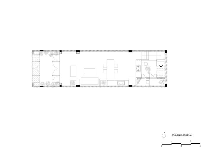
Sơ đồ bố trí tầng trệt.

Sơ đồ bố trí tầng lửng.

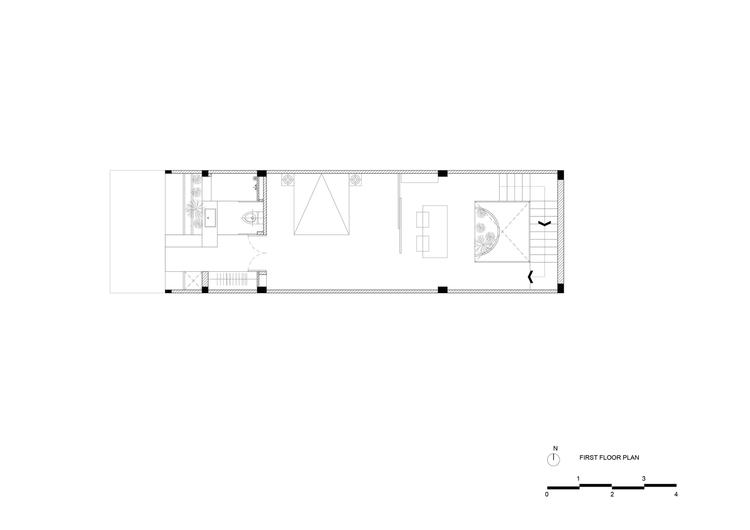
Sơ đồ bố trí tầng 1.

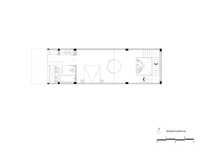
Sơ đồ bố trí tầng 2.

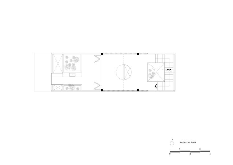
Sơ đồ bố trí tầng thượng.

Mái nhà.




