![]() |
| Khu đất của ngôi nhà có lối vào hẹp nhưng may mắn sở hữu phần nở hậu vuông vức. |
![]() |
| Kiến trúc sư tận dụng hình dạng đặc biệt của khu đất để tạo ra thiết kế thông thoáng cho tất cả các hướng, tất cả các không gian của ngôi nhà ống đều được thông thoáng tự nhiên, đồng thời tạo cho ngôi nhà có hình khối dích dắc hài hòa với không gian khu phố cũ. |
![]() |
| Tường gạch nung bao phủ mặt tiền với cách sắp xếp xen kẽ tạo thành các lỗ trống, cho phép gió, ánh sáng có thể nhẹ nhàng luân chuyển vào nhà mà vẫn đảm bảo sự riêng tư cần thiết. |
![]() |
| Tầng trệt là nơi tiếp khách, bếp và bàn ăn lớn. |
![]() |
| Giải pháp thiết kế kết nối giữa khe sáng, tầng lửng và không gian thông tầng lớn kết hợp với việc mở ô cửa lớn kết nối giữa sân trước, khoảng thông tầng và sân sau nhằm tạo ra các vùng không gian thay đổi về khối tích để đưa gió và ánh sáng tự nhiên vào nhà. |
![]() |
| Sự thay đổi về không gian này tạo cảm giác rộng rãi và thoáng đãng, ngồi ở vị trí tầng trệt có thể bao quát hết toàn bộ không gian của ngôi nhà. |

Tầng lửng là không gian sinh hoạt gia đình thường xuyên, nơi cả nhà cùng chơi đàn piano.

Tấm phản gỗ cũng là nơi đọc sách và thư giãn.
![]() |
| Lầu 1 dành cho phòng ngủ master đầy đủ tiện nghi như phòng tắm, phòng thay quần áo lớn và 1 góc làm việc nhỏ. Lầu 2 gồm phòng thờ và 2 phòng ngủ cho 2 em bé. |
![]() |
| Gần như toàn bộ đồ nội thất trong nhà làm bằng gỗ chò chỉ xẻ ra và sấy khô. Phần gỗ lớn được chọn làm bàn ăn, tấm phản gỗ ngồi đọc sách ở tầng lửng và giường ngủ lớn phòng master. |
![]() |
| Bề mặt gỗ chỉ cần lau dầu lanh nhẹ để bảo vệ gỗ vừa giữ được màu sắc và vân gỗ tự nhiên. |
![]() |
| Ngôi nhà phối hợp hài hòa giữa vật liệu bê tông trần và gạch nung và gỗ, vật liệu thô mộc tạo cho ngôi nhà tuy được xây dựng mới nhưng không tạo cảm giác xa lạ mà như đã tồn tại ở đây từ rất lâu. |

Mặt bằng tầng trệt nhà ống.

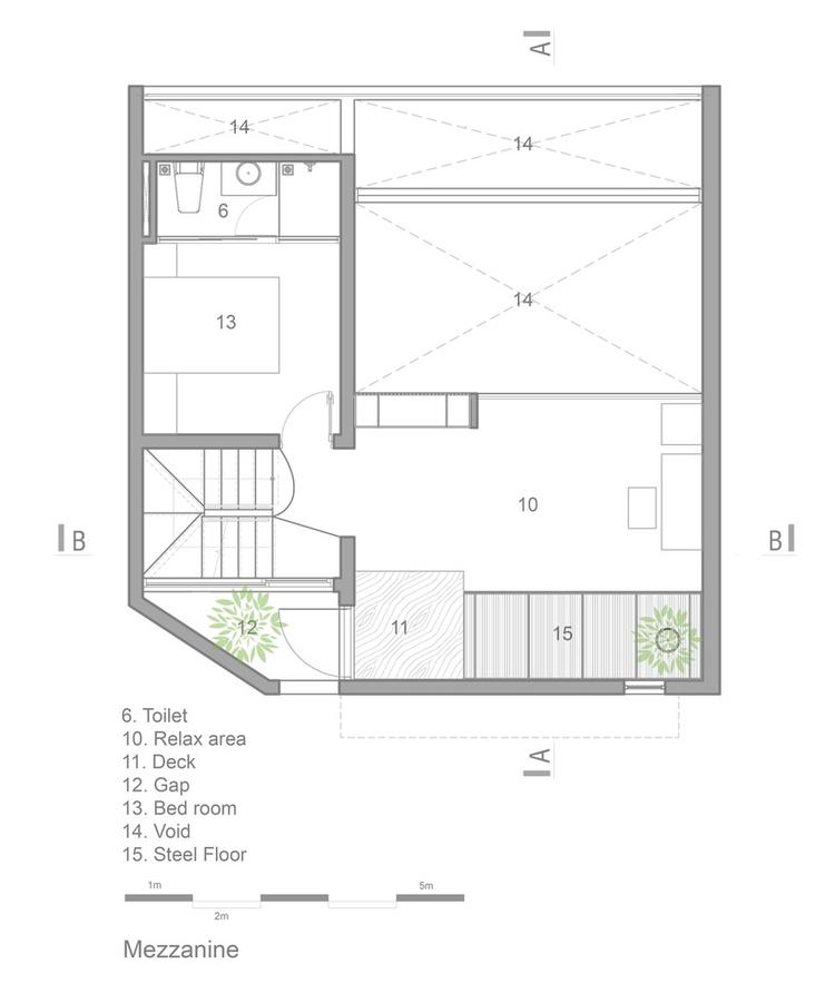
Mặt bằng tầng lửng.

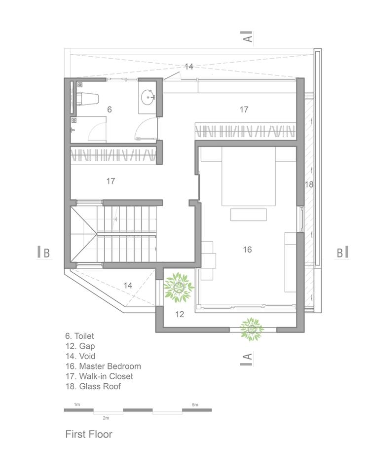
Mặt bằng lầu 1.

Mặt bằng lầu 2.

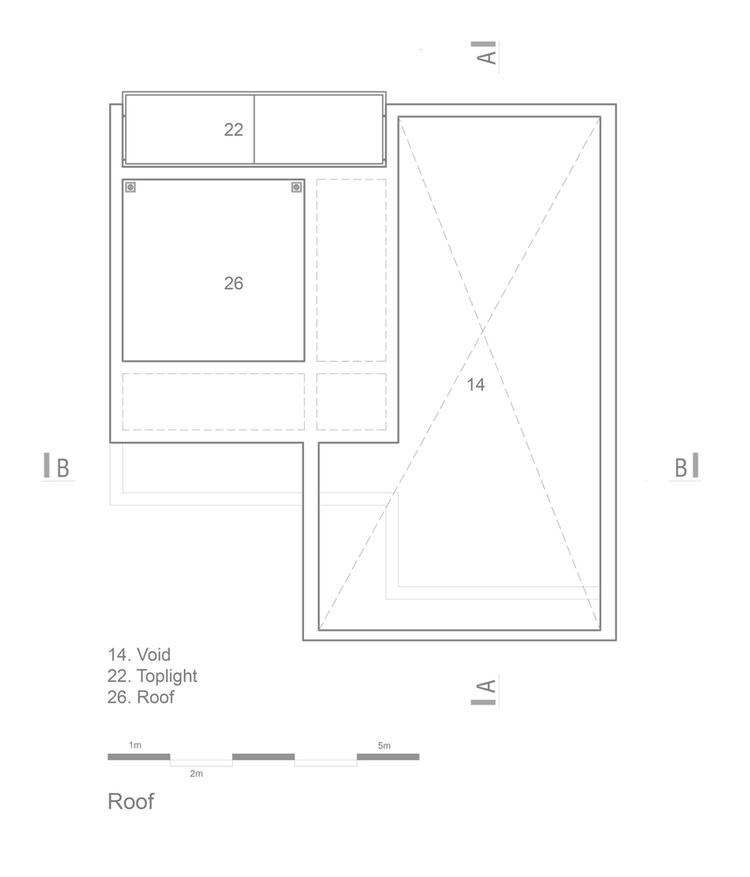
Mặt bằng tầng mái.

Mặt cắt 1.

Mặt cắt 2.

Mặt đứng ngôi nhà.
- Địa điểm: Quận 1, TP.HCM
- Kiến trúc sư: Nguyễn Hải Long, Trần Thị Ngụ Ngôn
- Năm hoàn thành: 2016
- Diện tích: 80m2
- Tổng diện tích sàn 300m2
- Số tầng cao: 04 (1 trệt, 1 lửng, 2 lầu)
- Vật liệu: bê tông, đá mài, gạch và gỗ tự nhiên
- Hình ảnh: Quang Dam
Khánh An














