Đúng như cái tên Tole House (nhà tôn), ngôi nhà ở Vũng Tàu có thiết kế ngoại thất khá đơn giản với kết cấu khung sắt được bao bọc bằng lớp tôn màu trắng thay vì tường gạch và bê tông thường thấy. Vì ngân sách xây dựng hạn hẹp, gia chủ muốn tiết kiệm chi phí cho ngoại thất, chỉ làm tối giản để tập trung đầu tư cho không gian nội thất. Đáp ứng yêu cầu này, đội ngũ thiết kế của công ty kiến trúc H2 đã lên ý tưởng thiết kế ngôi nhà Tole House với bề ngoài tối giản, không cầu kì nhưng không gian nội thất sẽ gây bất ngờ cho những ai có dịp ghé thăm. Phía sau những tấm tôn sóng gợi liên tưởng đến thiết kế nhà xưởng trong khu công nghiệp là một không gian sống rất tiện nghi, sang trọng với nội thất gỗ và nhiều cây xanh rải rác quanh nhà. Mỗi không gian đều mở ra một mảng xanh, lấy ánh sáng từ giếng trời, kết nối với nhau để tạo nên sự gắn kết giữa ba thế hệ trong gia đình: ông bà – cha mẹ – con cái. Nhà có đầy đủ công năng phục vụ đời sống của gia đình đa thế hệ, từ phòng thờ cúng trang nghiêm đến không gian vui chơi độc đáo trên lưới thông tầng dành cho trẻ nhỏ. Dù diện tích đất hạn hẹp, phải cân đối cho nhiều mục đích sử dụng, gia chủ vẫn muốn có một khu vườn nhỏ để cha mẹ già có nơi nghỉ ngơi, thư giãn. Không gian xanh được bố trí ở mọi ngóc ngách trong nhà cũng tạo nên môi trường sống yên bình, khơi nguồn sáng tạo cho trẻ nhỏ học hành, khôn lớn.

Ngôi nhà có kết cấu khung thép được bao bọc bên ngoài bằng lớp tôn cách nhiệt, mặt bên trong gồm một lớp tôn kết hợp với vách thạch cao. Lựa chọn vật liệu như thế này không chỉ giúp tiết kiệm chi phí cho phần ngoại thất mà còn thể hiện cá tính mạnh mẽ, quyết đoán của gia chủ.

Thiết kế cửa sổ lật mở kết hợp với cửa ra vào bằng song sắt giúp không gian trong nhà thoáng sáng nhờ được thông gió và đón ánh sáng tự nhiên.

Trái ngược với ấn tượng mạnh mẽ, có phần lạnh lẽo, khô khan của những tấm tôn, không gian nội thất gây bất ngờ với thiết kế tiện nghi, ấm áp nhờ đồ gỗ và nhiều cây xanh trang trí.

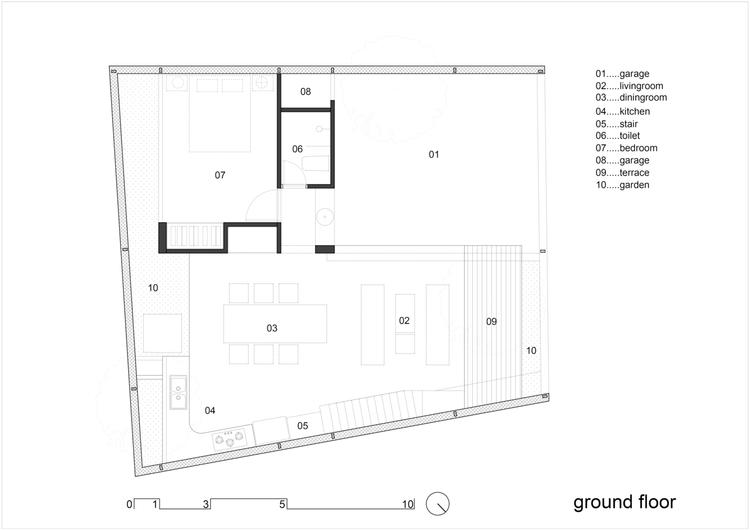
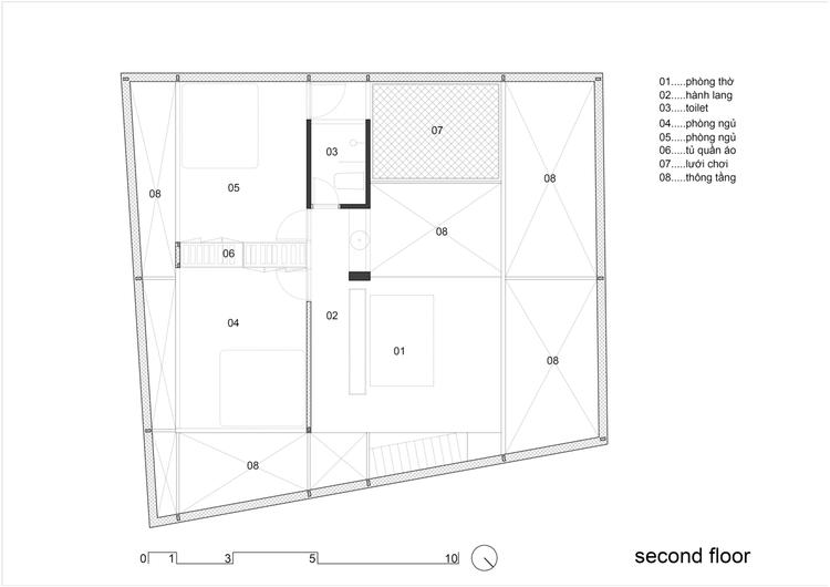
Nhà có diện tích 103m2, gồm 2 tầng: tầng 1 có không gian để xe, phòng khách, bàn ăn, bếp, phòng vệ sinh và 1 phòng ngủ; tầng 2 có phòng thờ, 2 phòng ngủ và phòng vệ sinh. Các không gian được bố trí hợp lý, liên kết với nhau, phù hợp với nhu cầu sử dụng của gia đình đa thế hệ.

Vách thạch cao kết hợp với các ô giếng trời và mảng xanh xen kẽ không gian, giúp ngôi nhà luôn sáng sủa, thoáng mát và giàu sinh khí.

Căn bếp xinh xắn với bồn rửa đặt ngay cạnh giếng trời, dưới bóng mát của 1 cây khế lớn và nhiều cây nhỏ đủ loại xen kẽ xung quanh.

Phòng thờ được bố trí ở vị trí trang nghiêm, riêng biệt, hướng ra phía cửa sổ lật mở.

Khung lưới phía trên thông tầng là nơi vui chơi của trẻ em cũng như chốn thư giãn độc đáo cho cả gia đình.

Các thành viên có thể chơi đùa, đọc sách, trò chuyện hay đơn giản là nằm yên thư giãn dưới tán cây xanh.

Một phòng ngủ có cửa sổ lớn mở ra khu thông tầng.

Dù diện tích hạn hẹp, kiến trúc sư vẫn thiết kế những mảng xanh với nhiều cây cối đa dạng như một khu vườn mini ngay bên trong nhà.

Nội thất gỗ tạo sự đồng bộ và cảm giác ấm áp, sang trọng cho không gian nội thất.

Mặt bằng tầng 1

Mặt bằng tầng 2
Thông tin công trình:
- Tên công trình: Tole House
- Địa điểm: Thành phố Vũng Tàu, tỉnh Bà Rịa-Vũng Tàu
- Diện tích: 103m2
- Đơn vị thiết kế: H2
- Nhóm KTS phụ trách: Trần Văn Huỳnh, Nguyễn Thị Nhân Hải, Đỗ Trọng Nhân Kiệt, Nguyễn Văn Hòa, Trần Văn Hà
- Năm hoàn thành: 2020
- Ảnh: Quang Dam
Hương Liên
Link nguồn: http://thanhnienviet.vn/2020/09/28/nha-vung-tau-ben-ngoai-boc-ton-don-gian-ben-trong-tien-nghi-bat-ngo
Tuyên bố miễn trừ trách nhiệm: Thông tin được cung cấp chỉ mang tính chất thông tin chung, Công ty cổ phần PropertyGuru Việt Nam không đưa ra bất kỳ tuyên bố hoặc bảo đảm nào liên quan đến thông tin, bao gồm nhưng không giới hạn bất kỳ sự tuyên bố hoặc bảo đảm về tính thích hợp cho bất kỳ mục đích cụ thể nào của thông tin theo phạm vi cho phép tối đa của pháp luật. Mặc dù đã nỗ lực để đảm bảo rằng thông tin được cung cấp trong bài viết này là chính xác, đáng tin cậy và hoàn chỉnh vào thời điểm đăng tải, nhưng thông tin được cung cấp trong bài viết này không nên được dựa vào để đưa ra bất kỳ quyết định tài chính, đầu tư, bất động sản hoặc pháp lý nào. Thêm vào đó, thông tin không thể thay thế lời khuyên từ một chuyên gia được đào tạo, người mà có thể xem xét, đánh giá các sự kiện và hoàn cảnh cá nhân của bạn, và chúng tôi không chịu bất kỳ trách nhiệm nào nếu bạn sử dụng những thông tin này để đưa ra quyết định.