Mảnh đất có diện tích 80m2, do vậy chủ nhà dự định xây nhà với mặt sàn 60m2, phần còn lại để làm sân trước và sân sau. Vốn là người am hiểu về kiến trúc, chủ nhà mong muốn tạo ra không gian sống có nhiều mảng xanh, có hồ nước và ngập tràn ánh sáng tự nhiên. Tất nhiên, ngôi nhà phải đảm bảo các công năng cần thiết gồm chỗ để xe, phòng khách, bếp, phòng ăn, 3 phòng ngủ, phòng giặt đồ và sân thượng.
Dựa theo yêu cầu của chủ nhà, kiến trúc sư Song Phát đã triển khai thiết kế nhà ống 1 trệt 2 lầu có sân thượng như sau:
– Tầng trệt sẽ chừa lại 2,5m phía trước để làm sân trước và 1,5m phía sau để làm sân sau. Ngay cửa đi vào là khu vực để xe kết hợp tiểu cảnh hồ cá. Tiếp đó đến bếp và khu vực ăn uống, sân sau có nhà vệ sinh.

Sơ đồ bố trí mặt bằng tầng trệt nhà ống 1 trệt 2 lầu có sân thượng.
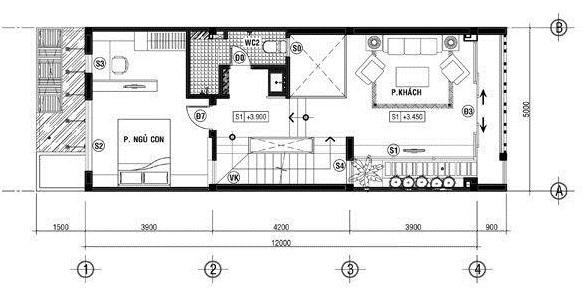
– Lầu 1 sẽ gồm phòng khách, phòng ngủ của con và một phòng vệ sinh.

Sơ đồ bố trí mặt bằng lầu 1.
– Lầu 2 gồm 2 phòng ngủ và một nhà vệ sinh.

Sơ đồ bố trí mặt bằng lầu 2.
– Sân thượng là nơi để bố trí phòng giặt đồ, sân phơi và
vườn trên mái.

Sơ đồ bố trí mặt bằng tầng thượng.
Nhà hướng chính Đông đón nhận được ánh nắng sáng sớm chiếu thẳng vào. Ngôi nhà sở hữu mặt tiền nhìn ra công viên nhỏ nên rất thoáng mát. Trước nhà có cây bàng lá nhỏ, do vậy kiến trúc sư tận dụng lợi thế này để đề xuất giải pháp dùng hệ lam bê tông ở lầu 1 và lầu 2. Hệ lam này cũng đóng vai trò là phông nền làm nổi bật màu xanh của cây bàng, đồng thời ngăn cản tới 60% lượng nắng chiếu xiên vào phòng ngủ và giúp ngôi nhà trở nên riêng tư hơn.
Vào buổi sáng, khi mặt trời lên, ánh nắng sớm chiếu qua hệ lam tạo nên hiện tượng đổ bóng vô cùng thú vị. Khi đêm xuống, ánh sáng đèn ấm áp tỏa ra từ các ô nhỏ đan xen khiến ngôi nhà nổi bật như một chiếc đèn lồng giữa khu phố.

Nhà phố tỏa ánh sáng lung linh như đèn lồng vào buổi tối.
Kiến trúc lệch tầng tạo ra những khoảng trống để lấy được tối đa ánh sáng tự nhiên vào bên trong. Điểm nhấn kiến trúc của tầng trệt chính là hồ cá Koi nằm đối diện cầu thang. Ánh sáng trực tiếp từ giếng trời kết hợp với ánh sáng gián tiếp lấy từ sân trước, sân sau kết hợp cùng hồ cá, lu nước mang lại không gian sống sinh động.
 |
| Hồ cá Koi trở thành điểm nhấn sinh động cho không gian sống. |
 |
| Giếng trời mang ánh sáng và không khí trong lành cho toàn bộ ngôi nhà, được nhấn nhá bằng những chiếc đèn thả với hình dạng tựa như những giọt nước đang rơi. |
 |
| Tông màu lạnh, nhẹ nhàng gồm đen, trắng và xám được sử dụng chủ yếu trong không gian nội thất của nhà phố 1 trệt 2 lầu có sân thượng. |
 |
| Cầu thang bậc rỗng cùng lan can kính khiến tổng thể trở nên thanh thoát, nhẹ nhàng và thoáng đãng hơn. |
 |
| Gam màu trắng của hệ tủ khiến không gian nấu nướng trở nên sang trọng hơn. Nhằm xua đi cảm giác đơn điệu, kiến trúc sư đã kết hợp thêm kính ốp bếp màu nâu đỏ cùng ghế ngồi viền đen. Bộ đèn thả bất đối xứng tạo nên nét cuốn hút cho góc ăn uống. |
Thiết kế nhà hướng tới đưa ánh sáng tự nhiên ngập tràn khắp không gian nhưng không bỏ qua tiêu chí gần gũi với thiên nhiên. Trong đó, phòng khách là khu vực thể hiện rõ nét nhất tiêu chí này khi sử dụng cửa kính đón sáng ở cả hai hướng. Việc lựa chọn nội thất đơn giản khiến phòng khách như rộng hơn. Nhờ đó, gia chủ sẽ luôn được hòa mình vào cùng thiên nhiên với ánh sáng, cây xanh và gió trời dù ngồi trong phòng khách.

Phòng khách hiện đại, gắn kết với thiên nhiên.
 |
| Có thể thấy, sự phá cách trong lối thiết kế đã tạo nên một không gian sống đặc biệt trong nhà phố 1 trệt 2 lầu. |
Phòng ngủ của các con được thiết kế đáng yêu, sử dụng vách ngăn để phân tách khu vực ngủ nghỉ và học tập. Ở đây, vách ngăn ngoài vai trò phân chia không gian còn được tận dụng làm kệ để đồ trang trí và đồ chơi cho bé.

Phòng ngủ của bé.
Phòng ngủ master của vợ chồng gia chủ được bố trí ở lầu 2, có cửa kính lớn ở phía mặt tường nhà để đón sáng. Hệ lam bê tông với những ô nhỏ giúp căn phòng thông thoáng nhưng vẫn có sự riêng tư nhất định.

Phòng ngủ master.
Phòng vệ sinh toát lên vẻ hiện đại với nền gạch xám cùng gạch ốp tường lạ mắt mang đến cảm giác thoải mái cho người sử dụng. Cùng với cửa sổ lấy sáng, kiến trúc sư còn sử dụng tranh nghệ thuật để trang trí cho phòng tắm.

Phòng vệ sinh.
 |
| Sân thượng được tận dụng làm vườn trên mái cung cấp rau sạch cho những bữa cơm gia đình suốt cả năm. |

Công trình nhà phố 1 trệt 2 lầu có sân thượng trong giai đoạn thi công.
Tư vấn thiết kế và hình ảnh: Kiến trúc xây dựng Song Phát
Link nguồn: http://thanhnienviet.vn/2020/02/08/tham-khao-thiet-ke-nha-ong-1-tret-2-lau-co-san-thuong-o-sai-gon
Tuyên bố miễn trừ trách nhiệm: Thông tin được cung cấp chỉ mang tính chất thông tin chung, Công ty cổ phần PropertyGuru Việt Nam không đưa ra bất kỳ tuyên bố hoặc bảo đảm nào liên quan đến thông tin, bao gồm nhưng không giới hạn bất kỳ sự tuyên bố hoặc bảo đảm về tính thích hợp cho bất kỳ mục đích cụ thể nào của thông tin theo phạm vi cho phép tối đa của pháp luật. Mặc dù đã nỗ lực để đảm bảo rằng thông tin được cung cấp trong bài viết này là chính xác, đáng tin cậy và hoàn chỉnh vào thời điểm đăng tải, nhưng thông tin được cung cấp trong bài viết này không nên được dựa vào để đưa ra bất kỳ quyết định tài chính, đầu tư, bất động sản hoặc pháp lý nào. Thêm vào đó, thông tin không thể thay thế lời khuyên từ một chuyên gia được đào tạo, người mà có thể xem xét, đánh giá các sự kiện và hoàn cảnh cá nhân của bạn, và chúng tôi không chịu bất kỳ trách nhiệm nào nếu bạn sử dụng những thông tin này để đưa ra quyết định.