
Ngôi nhà ống được xây dựng trên mảnh đất 4x18 m (quận 7, TP.HCM)
Diện tích sử dụng của ngôi nhà chỉ hơn 50m2 vì phải chừa một phần phía trước và phía sau theo quy định xây dựng. Đây là nơi sinh sống của gia đình 3 thế hệ với 5 thành viên.

Ngôi nhà được thiết kế hai vế tầng lệch nhau và cầu thang ở giữa để tận dụng tối đa diện tích
phục vụ cho nhu cầu sinh hoạt của gia đình

Thiết kế lệch tầng, giúp giảm bớt diện tích cho cầu thang nhưng vẫn đảm bảo đi lại
thoải mái, đồng thời, rút ngắn khoảng cách giữa các tầng

Các kiến trúc sư đã sử dụng giải pháp lệch tầng ngay từ mặt bằng tầng 1 với việc nâng sàn của gara để xe
ở phía trước cao hơn so với khu vực sinh hoạt chung gồm phòng khách, bếp – ăn liên thông ở phía sau

Thiết kế lệch tầng giúp gia chủ có thể tận dụng khoảng đệm giữa các phòng để làm không gian sinh hoạt
chung như: hành lang tiếp giáp với khoảng thông tầng, nằm giữa phòng của trẻ với phòng cha mẹ được
bố trí thành góc học tập của trẻ và làm việc của cha mẹ

Ngôi nhà ống lệch tầng không chỉ tăng sự kết nối giữa các thành viên với nhau, mà còn
giữa con người với thiên nhiên, khi thông qua cầu thang lệch tầng mà ánh sáng từ
giếng trời có thể dễ dàng tiếp cận các không gian trong nhà

Tận dụng lợi thế có view hướng trực tiếp ra công viên phía trước, KTS đã mở rộng tối đa
các cửa sổ phía mặt tiền

Phòng ngủ chính như hòa cùng thiên nhiên bên ngoài khi các cửa sổ được mở toang

KTS đã sử dụng hệ cửa hai lớp với lớp bên ngoài là nhựa cứng compact có hoa văn, có tác dụng chắn
ánh nắng trực tiếp và tăng tính thẩm mỹ cho công trình; lớp bên trong là hệ cửa lùa bằng kính,
tạo sự thoáng đãng cho không gian

Phòng ngủ thêm phần ấn tượng khi bóng hoa văn từ cửa hắt vào mỗi khi có ánh nắng

Lớp cửa ngôi nhà ống như cả trời sao rực rỡ qua hiệu ứng ánh sáng,
nhất là về buổi đêm

Bản thiết kế mặt bằng tầng 1 ngôi nhà ống lệch tầng

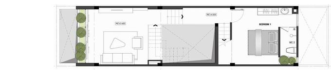
Bản thiết kế mặt bằng tầng 2 ngôi nhà ống lệch tầng

Bản thiết kế mặt bằng tầng 3 ngôi nhà ống lệch tầng

Bản thiết kế mặt bằng tầng 4 ngôi nhà ống lệch tầng




