Ngôi nhà được xây dựng trên khu đất có diện tích 8,4x56m, tại một trục đường đang phát triển. Các công trình xây dựng mất dần bản sắc của vùng đất cao nguyên nhiệt đới, khiến tác động của tiếng ồn, khói bụi dần xâm lấn không gian. Khi tiếp cận dự án này, đội ngũ kiến trúc sư X11 Design Studio quan tâm đến việc giải quyết những tác động tiêu cực của điều kiện tự nhiên và xã hội. Tiếp đó, giữ lại chiếc giếng cổ đã tồn tại qua rất nhiều thế hệ, tạo ra một không gian mở thật ấm cúng, giúp kết nối giữa con người với thiên nhiên, giữa các thành viên trong gia đình mà không phá vỡ đi sự riêng tư của họ.

Ngôi nhà phố nổi bật so với những công trình xung quanh nhờ thiết kế độc đáo, khác biệt.

Từ cổng vào là một khoảng đệm kết hợp cây xanh, có nhiệm vụ giảm bớt tác động của khói bụi và tiếng ồn xe cộ.
 |
| Việc xử lý hình khối và cấu trúc mặt đứng 2 lớp, giúp không gian ở tránh được bức xạ trực tiếp từ hướng Tây nhưng vẫn tràn ngập ánh sáng và thông gió tự nhiên. |

Hệ cửa màu nâu đậm phảng phất nét kiến trúc xưa.
 |
| Chức năng đầu tiên là nơi sinh hoạt chung của cả gia đình. Không gian tiếp khách thoáng rộng nhờ trần nhà cao. Chất liệu gỗ mộc mạc mang lại cảm giác gần gũi, thân thiện. |

Một khoảng thông tầng lớn được kết nối với không gian đọc sách và phòng thờ phía trên.

Giếng trời mang ánh sáng, gió trong lành và cây xanh len lỏi vào từng khoảng không gian trong nhà.

Góc bếp nhỏ gây ấn tượng với tường ốp gạch mosaic xanh mát mắt.

Từ bàn ăn nhìn thẳng ra hành lang đầy gió và ánh sáng.

Phòng ngủ master với hệ tủ kịch tường tạo cảm giác liền mạch, đồng thời gia tăng không gian lưu trữ.

Phòng ngủ của con bắt xu hướng khi sử dụng 2 màu vàng và xám – cặp màu của năm 2021.

Phòng vệ sinh
Kết nối với các không gian cá nhân phía sau là một hành lang chạy xung quanh giếng, tiếp xúc trực tiếp với thiên nhiên. Hệ thống lam gỗ, gạch thông gió, giếng trời giúp các khối chức năng dễ dàng tiếp cận tự nhiên nhưng vẫn đảm bảo tính riêng tư cho từng không gian. Sau cùng là một sân cỏ rộng rãi, nơi vui chơi của những đứa trẻ và là nơi để tụ tập, quây quần với người thân, bạn bè.

Hành lang rất dài trở thành sân chơi cho con trẻ.

Hệ lam cửa xoay được thiết kế có thể đóng mở, hỗ trợ việc thông gió nhưng vẫn đảm bảo tính riêng tư cho không gian.
 |
| Các không gian được bố trí xung quanh giếng cổ, như một dòng chảy xuyên suốt công trình. Điều này tạo ra một môi trường sống khép kín, yên tĩnh và tách bạch với ngoại cảnh đô thị. |

Các khe nắng thay đổi liên tục và di chuyển trong ngày, giúp ngôi nhà thêm phần sống động và hấp dẫn.
 |
| Việc sử dụng tường gạch mộc, gốm thủ công, gỗ tự nhiên kết hợp với mảng ngói âm dương chịu sương gió, làm không gian trở nên gần gũi và mộc mạc. Đâu đó, mang chút sắc màu dữ dội, đặc trưng của dải đất cao nguyên này. |

Sân sinh hoạt chung phía sau sử dụng gạch mộc, gạch thông gió và đá giúp không gian trở nên mộc mạc, gần gũi hơn.

KTS bố trí một cầu thang xoắn tối giản dẫn lên tầng 2 ở khu sân sinh hoạt chung.
Time House mang dáng dấp của không gian và thời gian. Công trình kết hợp sử dụng vật liệu cũ, mới và các vật liệu tự nhiên được xử lý ở mức độ vừa đủ để không mất đi khí chất vốn có của chúng. Sự kết nối của hiện tại, quá khứ và tương lai, giữa con người với con người, con người với môi trường xung quanh là giá trị cốt lõi mà công trình mang đến.
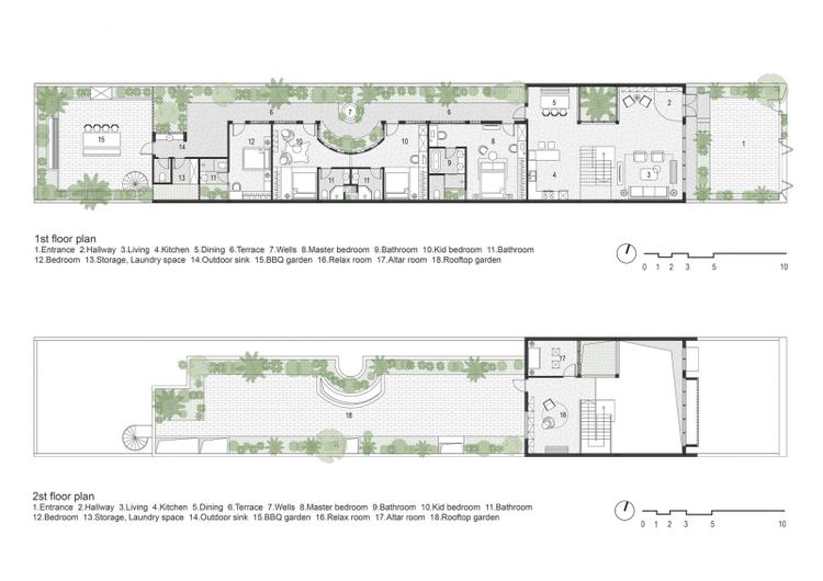
Bản vẽ mặt bằng các tầng nhà phố.
Thông tin dự án:
- Tên dự án: Time House – Mảnh ghép của thời gian
- Đơn vị thiết kế : X11 Design Studio
- Tình trạng: Hoàn thành 2020
- Diện tích: 320m2
- Địa điểm: Kon Tum
- Ảnh: Quang Dam
Khánh An
Link nguồn: http://thanhnienviet.vn/2021/02/25/dong-thoi-gian-tuon-chay-trong-ngoi-nha-pho-dai-56m-o-kon-tum
Tuyên bố miễn trừ trách nhiệm: Thông tin được cung cấp chỉ mang tính chất thông tin chung, Công ty cổ phần PropertyGuru Việt Nam không đưa ra bất kỳ tuyên bố hoặc bảo đảm nào liên quan đến thông tin, bao gồm nhưng không giới hạn bất kỳ sự tuyên bố hoặc bảo đảm về tính thích hợp cho bất kỳ mục đích cụ thể nào của thông tin theo phạm vi cho phép tối đa của pháp luật. Mặc dù đã nỗ lực để đảm bảo rằng thông tin được cung cấp trong bài viết này là chính xác, đáng tin cậy và hoàn chỉnh vào thời điểm đăng tải, nhưng thông tin được cung cấp trong bài viết này không nên được dựa vào để đưa ra bất kỳ quyết định tài chính, đầu tư, bất động sản hoặc pháp lý nào. Thêm vào đó, thông tin không thể thay thế lời khuyên từ một chuyên gia được đào tạo, người mà có thể xem xét, đánh giá các sự kiện và hoàn cảnh cá nhân của bạn, và chúng tôi không chịu bất kỳ trách nhiệm nào nếu bạn sử dụng những thông tin này để đưa ra quyết định.