
Ngôi nhà gây ấn tượng với mặt tiền sơn màu trắng sang trọng, thanh lịch

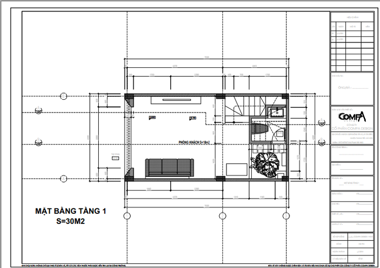
Tầng 1 là không gian phòng khách và nhà vệ sinh.

Bộ sofa tiếp khách kiểu dáng hiện đại với tone màu ghi giúp không gian trở nên sang trọng hơn

Lavabo tầng 1 để lộ ngoài phòng khách tiện cho khách rửa tay, không phải vào WC. Đi kèm với Lavabo là chiếc tủ để các đồ dùng như chổi, giẻ lau nhà, máy hút bụi… giúp không gian luôn ngăn nắp.

Do nhà có diện tích nhỏ nên cầu thang được thiết kế khá tinh tế, từ bậc cầu thang cho tới tay vịn đều được tính toán kỹ lưỡng để vừa đảm bảo công năng, vừa có tính thẩm mỹ

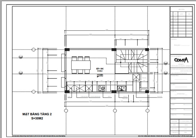
Tầng 2 là khu vực bếp, bàn ăn…

Căn bếp xinh xắn với tông màu trắng – đen được trang bị đầy đủ các thiết bị hiện đại…

… là nơi chị Hằng thỏa niềm đam mê nấu ăn

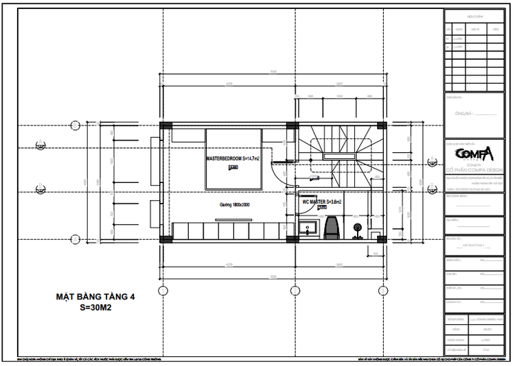
Phòng ngủ master có diện tích 18m2, được sử dụng tông màu kem trắng nhã nhặn
Phòng ngủ cậu con trai cả với tông màu xanh xám mạnh mẽ, nam tính

Phòng ngủ của cô con gái út với tông màu xanh vàng nữ tính

Các phòng ngủ đều được thiết kế WC khép kín. Đây là WC của phòng ngủ master

WC phòng con trai. Mặc dù diện tích nhỏ nhưng WC được thiết kế đầy đủ tiện nghi, từ tủ lavabo tới bồn tắm

WC xanh lá cùng tông màu với phòng ngủ của con gái

Chiếc xích đu ngoài ban công được thiết riêng cho cô con gái nhỏ

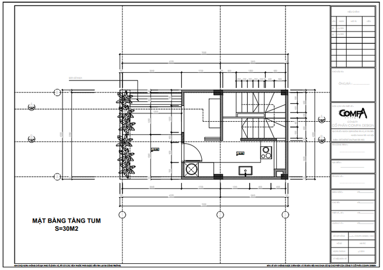
Không gian ấn tượng nhất của căn nhà có lẽ là khu vực sân thượng tầng tum với thiết kế giống như homestay

Đây là nơi cả gia đình quây quần bên những bữa tiệc cuối tuần. Cùng nhau nhâm nhi ly rượu vang và tận hưởng những cơn gió se lạnh của mùa thu Hà Nội

Để tiện cho việc dọn rửa, vợ chồng chị Hằng còn bố trí hẳn 1 bồn rửa mini ngay trên tầng tum


