Sau gần 2 tháng chờ đợi thi công và hoàn thiện, vợ chồng chị Trần Thị Kim Hảo (TP. Bảo Lộc, Lâm Đồng) đã chính thức chuyển đến ngôi nhà mới do chính mình tự tay thiết kế. Trên diện tích xây dựng 7x14m, nhà cấp 4 vẫn đảm bảo các công năng gồm gara để ô tô, phòng khách, bếp kết hợp phòng ăn, 2 phòng ngủ và kho chứa đồ. Đặc biệt, gia chủ chia sẻ, chi phí xây dựng nhà chỉ khoảng 320 triệu đồng, trong đó tiền vật liệu thô 70 triệu đồng, tiền công thầu 85 triệu đồng, còn lại là chi phí dành cho hệ thống điện nước và phần hoàn thiện.
Theo chị Hảo, vì ngôi nhà do chính tay vợ chồng chị lên ý tưởng nên vẫn còn nhiều thiếu sót. Tuy nhiên, những ai đang có dự định xây nhà hoàn toàn có thể tham khảo phương án thiết kế, bố trí nhà để có thêm nhiều ý tưởng cho tổ ấm tương lai của mình.
 |
| Ngôi nhà cấp 4 được thiết kế theo phong cách hiện đại, nhỏ xinh giống như homestay. Tường sơn trắng, kết cấu giả gỗ shiplap cùng hệ mái lệch sole hiện đại gợi liên tưởng đến những ngôi nhà ở xứ sở trời Âu. |
 |
| Phòng khách nhỏ xinh nhưng ấm cúng và sáng sủa nhờ cửa sổ và cửa phụ làm bằng kính cường lực khung sắt. Sofa màu trung tính, bàn trà bằng gỗ đều có kích cỡ vừa phải cho phù hợp với diện tích phòng khách. Không gian với gam màu trung tính chủ đạo trở nên thú vị hơn nhờ những chiếc gối tựa màu vàng tươi. |
 |
| Sàn gạch giả gỗ vừa bền đẹp, tiết kiệm chi phí, vừa tạo cảm giác sang trọng. Góc nấu nướng xinh xắn với hệ tủ nhỏ gọn chạy dọc tường. Tường bếp ốp gạch caro trắng làm sáng không gian. |
 |
| Phòng ngủ lát gạch giả gỗ để tiết kiệm chi phí. Do mới chuyển đến nên đồ đạc trong phòng còn khá sơ sài. |

Phòng ngủ của 2 cô con gái.

Góc thư giãn mà gia chủ đặc biệt yêu thích.

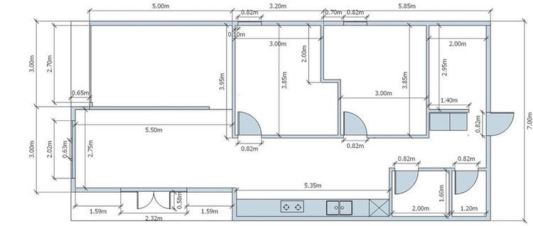
Mặt bằng công năng nhà cấp 4 được thiết kế tối ưu, tận dụng tối đa diện tích đất.
Ảnh: NVCC
Khánh An
Link nguồn: http://thanhnienviet.vn/2020/05/12/voi-320-trieu-vo-chong-tre-van-xay-len-ngoi-nha-cap-4-mo-uoc-tren-cao-nguyen-lam-dong
Tuyên bố miễn trừ trách nhiệm: Thông tin được cung cấp chỉ mang tính chất thông tin chung, Công ty cổ phần PropertyGuru Việt Nam không đưa ra bất kỳ tuyên bố hoặc bảo đảm nào liên quan đến thông tin, bao gồm nhưng không giới hạn bất kỳ sự tuyên bố hoặc bảo đảm về tính thích hợp cho bất kỳ mục đích cụ thể nào của thông tin theo phạm vi cho phép tối đa của pháp luật. Mặc dù đã nỗ lực để đảm bảo rằng thông tin được cung cấp trong bài viết này là chính xác, đáng tin cậy và hoàn chỉnh vào thời điểm đăng tải, nhưng thông tin được cung cấp trong bài viết này không nên được dựa vào để đưa ra bất kỳ quyết định tài chính, đầu tư, bất động sản hoặc pháp lý nào. Thêm vào đó, thông tin không thể thay thế lời khuyên từ một chuyên gia được đào tạo, người mà có thể xem xét, đánh giá các sự kiện và hoàn cảnh cá nhân của bạn, và chúng tôi không chịu bất kỳ trách nhiệm nào nếu bạn sử dụng những thông tin này để đưa ra quyết định.