![]() |
| Tọa lạc trong khu dân cư thuộc quận 7, TP.HCM, biệt thự hình lập phương là tổ ấm lui về của cặp vợ chồng cùng hai đứa con nhỏ. Mảnh đất xây nhà hình vuông với chiều rộng 15m. Diện tích cùng quy mô nhà bị hạn chế một phần do quy định về khoảng lùi trong xây dựng. |

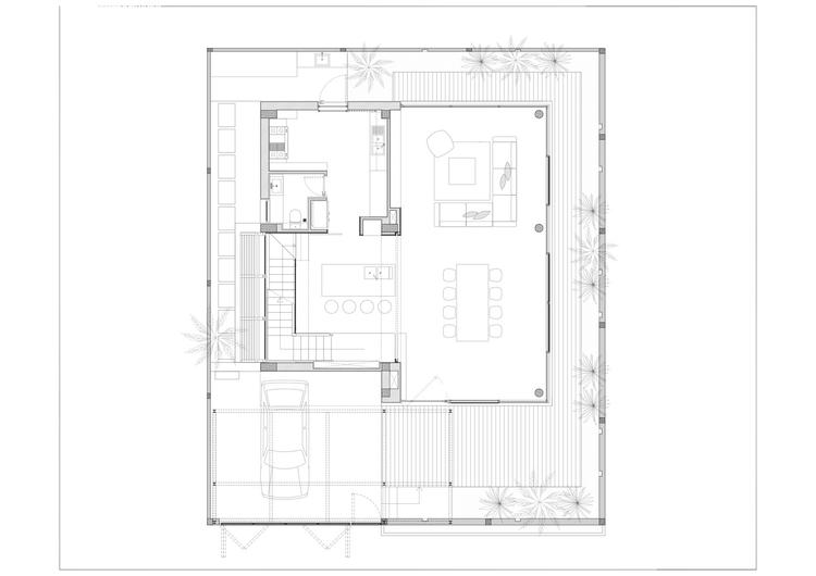
Công trình chia thành ba khối nhà tách biệt: tầng trệt, lầu 1 và lầu 2.

Tầng trệt là không gian mở bao gồm phòng khách, bếp, phòng ăn.
![]() |
| Toàn bộ mặt tiền phía Đông tầng trệt được lắp kính, phía Bắc và phía Nam chỉ lắp kính một phần cho phép ngôi nhà kết nối trực tiếp với khu vườn xung quanh. |
![]() |
| Khung kính lớn dọc theo cầu thang được trang bị mành để kiểm soát lượng ánh sáng mặt trời vào buổi chiều. Nhờ vậy mà ngôi nhà luôn mát mẻ. Khu vực phòng tắm và bếp ở hướng Tây có cửa sổ nhỏ để thông gió. |
![]() |
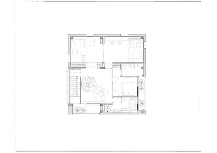
| Lầu 1 có 2 phòng ngủ, phòng tắm và gác lửng lớn dọc theo cầu thang. |
![]() |
| Đối lập với tầng trệt, lầu 1 là một khối nhà được bao quanh bởi tường gạch đặc 2 lớp có tác dụng cách nhiệt, giữ cho ngôi nhà luôn mát mẻ, đồng thời tiết kiệm chi phí sử dụng điện cho điều hòa. |
![]() |
| 2 logia ở phía Nam và phía Đông được tích hợp các ô trồng cây nhằm đảm bảo sự riêng tư và tạo tầm nhìn đẹp. |

Phòng ngủ của con.

Cầu thang xoắn ốc từ gác lửng dẫn lối lên lầu trên.
![]() |
| Lầu 2 giống như một khối hoàn toàn tách biệt, đặt trên khối màu trắng. |

Phòng ngủ trên lầu 2.

Hàng cây xanh bên ngoài không chỉ tạo tầm nhìn đẹp mà còn có tác dụng lọc ánh nắng mặt trời gay gắt.

Lớp đá phiến màu xám bao quanh mái và tường lầu 2 tạo ấn tượng thị giác độc đáo.
![]() |
| Lớp cách nhiệt trên trần và tường bê tông giữ cho ngôi nhà luôn mát mẻ dù tiếp xúc với ánh nắng mặt trời suốt cả ngày. |

Tầng trệt

Lầu 1.

Lầu 2.

Tầng mái.

Mặt cắt phía Nam.

Mặt cắt phía Bắc.

Mặt cắt phía Đông.

Mặt cắt phía Tây.
- Thiết kế: MM++ architects
- Năm hoàn thành: 2016
- Nhiếp ảnh: Hiroyuki Oki
Khánh An












