Bản Đồ Quận 9 Theo Cập Nhật Mới Nhất
Bản đồ Quận 9 TPHCM hay bản đồ hành chính các Phường tại Quận 9, sẽ giúp bạn đọc tra cứu thông tin về vị trí địa lý, ranh giới, địa hình thuộc khu vực Quận 9 một cách nhanh chóng và chính xác nhất.
Bản đồ hành chính quận 9 – vị trí các phường
Đơn vị hành chính Quận 9 chia thành 13 phường:
- Hiệp Phú
- Long Bình
- Long Phước
- Long Thạnh Mỹ
- Long Trường
- Phú Hữu
- Phước Bình
- Phước Long A
- Phước Long B
- Tân Phú
- Tăng Nhơn Phú A
- Tăng Nhơn Phú B
- Trường Thạnh
Bản đồ giao thông quận 9 TPHCM
Bản đồ du lịch tại quận 9
Bản đồ quy hoạch không gian đô thị quận 9
Bản đồ quy hoạch quận 9 – mặt bằng sử dụng đất
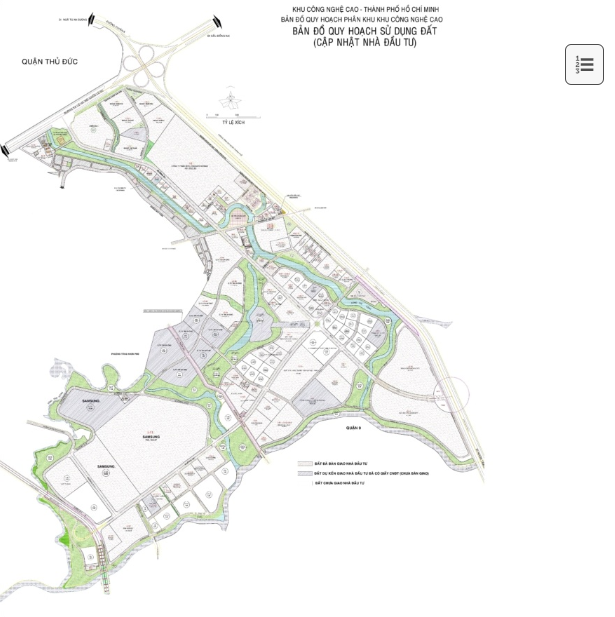
Bản đồ quy hoạch khu công nghệ cao quận 9
Quận 9 Gần Quận Nào?
Quận 9 TPHCM có vị trí khá độc lập, nằm về phía Đông thành phố, tiếp giáp ranh giới là tỉnh Đồng Nai và cũng được bao bọc toàn bộ bởi con sông Đồng Nai. Quận 9 TP HCM giáp giới với các quận sau:
- Phía Đông: giáp với thành phố Biên Hòa và huyện Long Thành của tỉnh Đồng Nai.
- Phía Tây: giáp địa danh Quận 2 qua sông Rạch Chiếc, giáp rạch Bà Cua và trục đường Tân Lập.
- Phía Nam: giáp với huyện Nhơn Trạch thuộc tỉnh Đồng Nai qua sông Đồng Nai.
- Phía Bắc: giáp với quận Thủ Đức thông qua tuyến xa lộ Hà Nội.
Vị trí địa lý quận 9 trên bản đồ TP HCM
Quận 9 TPHCM được thành lập vào năm 1997, có tổng diện tích đất tự nhiên là 114 km², dân số khảo sát năm 2019 là 316.450 người, mật độ dân số là 2.775 người/km²
Nguồn: Tổng cục thống kê Việt Nam
Việc quận 9 trở thành "Thành phố sáng tạo", đồng nghĩa sẽ thu hút đông đảo chuyên gia, trí thức và các gia đình trẻ đến địa bàn này sinh sống lâu dài. Quận 9 có vị trí kết nối thuận tiện. Là cửa ngõ phía Đông của TPHCM, nên người dân đi vào các quận trung tâm hoặc các tỉnh phía Đông rất thuận tiện.
Giá trị gia tăng dựa trên lợi thế về hạ tầng cũng chính là lý do khiến cho phân khúc nhà liền kế, biệt thự cao cấp, nhà phố ở khu đông TP.HCM nói chung và thị trường nhà phố liền kề quận 9 nói riêng thu hút các nhà đầu tư.
Một số dự án nhà phố, biệt thự quận 9 đã bàn giao mà bạn có thể tham khảo:
- Biệt thự, nhà phố Rio Vista
- The Venica Khang Điền
- Verosa Park Khang Điền
- Khu biệt thự Thảo Nguyên Sài Gòn
- Lucasta Villa
Hình chụp thực tế khu biệt thự Verosa Park với công viên Symphony Park, hồ cảnh quan Oceania
Thông Tin Quy Hoạch Quận 9 Mới Nhất
Cơ cấu sử dụng đất trên địa bàn quận 9 TPHCM đến năm 2020: Đất dân dụng là 3.767,96 ha, chiếm 33,08%, trong đó, đất ở đang là 2.261,97 ha, chiếm 19,86%; Đất khác trong khu dân dụng là 2.587,74 ha, chiếm 22,72%; Đất ngoài dân dụng là 5.033,92 ha, chiếm 44,2%.
Tính chất khu vực quy hoạch
Tính chất quy hoạch: quận 9 là một đơn vị hành chính cấp quận, tính chất & chức năng có thay đổi so với quy hoạch chung đã được phê duyệt vào năm 1999: Khu dân dụng thương mại & dịch vụ, du lịch, văn hóa, đào tạo giáo dục, tiểu thủ công nghiệp cấp khu vực & thành phố, là một phần đô thị khoa học công nghệ cao của thành phố.
Quy hoạch sử dụng đất và phân khu chức năng
1. Khu dân cư
– Chỉnh trang và xây dựng mới: vị trí phía Tây Bắc quận 9, giới hạn từ tuyến Xa lộ Hà Nội đến sông Rạch Chiếc và khu công nghệ cao (gồm các KDC tại phường Phước Bình, Phước Long A, Phước Long B, Tăng Nhơn Phú A, Tăng Nhơn Phú B, Hiệp Phú, Tân Phú, Long Thạnh Mỹ).
– KDC mới: phần còn lại của địa bàn quận 9 (gồm các KDC tại phường Phú Hữu, Long Trường, Trường Thạnh, Long Bình và Long Phước).
Quận 9 đang được chuyên gia đánh giá là một trong những quận phát triển bậc nhất của thành phố Hồ Chí Minh với hàng loạt các dự án bất động sản và dự án về hạ tầng giao thông đã và đang được triển khai. Trong đó, thị trường căn hộ chung cư quận 9 luôn khẳng định "sức hút" của mình với giới đầu tư.
Hơn nữa, giá căn hộ quận 9 cũng ở mức trung bình, thấp hơn nhiều so với Quận 1, Quận 2, Quận 7… Tuy nhiên, khách hàng mua căn hộ tại đây vẫn được thừa hưởng những tiện ích hiện đại vì cơ sở hạ tầng quận 9 đang dần hoàn thiện.
Một số dự án căn hộ tại quận 9 được nhận xét là có sự đầu tư lớn nhất năm 2022:
2. Dịch vụ đô thị & kiến trúc cảnh quan
– Hệ thống trung tâm cấp khu vực và thành phố:
+ Khu trung tâm dịch vụ đa năng cấp khu vực: quy mô 97 ha, tại phường Long Bình.
+ Khu trung tâm thương mại dịch vụ phía Đông thành phố: quy mô 140 – 150 ha, tại phường Trường Thạnh và Long Trường.
– Các công trình công cộng:
+ Khu hành chính quận 9: quy mô 34 ha; tập trung công trình cấp quận về hành chính, công viên cây xanh và TDTT.
+ Cụm công trình cấp thành phố dự trữ thuộc KĐT mới Tam Đa
– Mạng lưới giáo dục:
+ Bố trí giáo dục phổ thông, trường dạy nghề phù hợp với dân số
+ Các trường phổ thông được nâng cấp, xây dựng mới
– Mạng lưới y tế:
+ Y tế dự phòng: xây mới 2 trung tâm y tế dự phòng (quy mô 5.000m2/cơ sở); xây 5 Phòng khám bệnh xã hội (quy mô 3.000m2/cơ sở); xây 5 trung tâm tham vấn và hỗ trợ cộng đồng (quy mô 3.000m2/cơ sở).
+ 13 trạm y tế phường: nâng cấp và xây mới (quy mô từ 150 – 500m2/cơ sở).
+ Bệnh viện: nâng cấp và xây mới Viện điều dưỡng gồm 500 giường tại phường Long Trường (15,3 ha), xây mới bệnh viện đa khoa tại Long Bình (3,82 ha).
+ Khuyến khích phát triển bệnh viện tư nhân
– Mạng lưới thể dục thể thao:
+ Khu TDTT cấp thành phố: sân Golf Thủ Đức tại phường Long Thạnh Mỹ, Long Bình (285ha). Khu dành cho TDTT trong các công viên sinh thái tại phường Long Bình, Long Phước (520 – 540ha), khu huấn luyện TDTT tại phường Long Trường (khoảng 30ha), tại Phú Hữu (khoảng 15ha).
+ Công trình TDTT từ cấp quận, phường: nâng cấp và mở rộng quy mô theo quy chuẩn
– Công viên cây xanh:
+ Bố trí công viên cây xanh trong các KDC, bảo đảm 7- 8 m2/người.
+ Tập trung xây một số công viên sinh thái quy mô lớn (phường Long Phước, Long Bình, Trường Thạnh và Long Trường).
+ Bảo đảm về khoảng cây xanh cảnh quan ven sông rạch
+ Cải tạo công viên cây xanh hiện hữu, ưu tiên cây xanh tại các nhà máy di dời hiện hữu.
3. Công nghiệp & công nghệ cao
– Các cơ sở công nghiệp giữ lại: nhà máy dệt Phong Phú 16ha), tại Tăng Nhơn Phú B.
– KCN Phú Hữu: quy mô 114ha, tại Phú Hữu. Tập trung cơ sở sản xuất không ô nhiễm trên địa bàn quận và khai thác tiềm năng vận tải của sông Đồng Nai.
– Khu công nghệ cao: có quy mô lên đến 913ha, tại phường Tăng Nhơn Phú A, Long Thạnh Mỹ, Tân Phú. Dự kiến sẽ hình thành Khu công nghệ cao thứ 2, quy mô 200 ha, tại khu vực Long Phước.
4. Quy hoạch giao thông tại Quận 9
+ Giao thông đường bộ nội thị: Dự kiến nâng cấp theo quy định lộ giới. Tổng chiều dài các tuyến xây dựng mới là 250,272 km.
+ Giao thông đường bộ đối ngoại: Dự kiến cải tạo và xây dưng mới 6 tuyến đối ngoại, trong đó có 2 tuyến đường hiện hữu: quốc lộ 52, quốc lộ 1A và 4 tuyến dự phòng: tuyến cao tốc Thành phố Hồ Chí Minh – Long Thành – Dầu Giây, tuyến Vành đai 2, Vành đai 3, tuyến đường nối Vành đai 3. Tổng chiều dài 46,324 km.
+ Giao thông đường sắt quốc gia: dọc theo đường cao tốc TPHCM – Long Thành – Dầu Giây. Bố trí 1 depot cho đường sắt cao tốc tại Long Trường, quy mô 40ha.
+ Giao thông đường sắt liên đô thị: đường sắt TPHCM – Nhơn Trạch – sân bay Long Thành và tuyến giao thông đi theo đường cao tốc và Vành đai 3.
+ Giao thông đường sắt đô thị: đường sắt đô thị số 1 (Bến Thành – Suối Tiên). Bố trí 1 Depot Suối Tiên thuộc Long Bình, quy mô 27 ha.
+ Giao thông đường thủy: Các tuyến sông rạch có chức năng giao thông thủy: sông Đồng Nai; sông Tắc; rạch Chiếc – rạch Trau Trảu; rạch Ông Nhiêu.
+ Bến xe đối ngoại, bãi đỗ xe: Dự kiến xây mới các bến & bãi xe. Tổng quy mô 168,21 ha.
Quy hoạch giao thông trên địa bàn quận 9
- Bến chuyên dụng xe buýt (6 ha)
- Đầu mối trung chuyển hành khách (0,6 ha)
- Bến xe liên tỉnh (31,01 ha)
- Bãi đậu xe ô tô (35,9 ha)
- Bãi đâu xe taxi (4,7 ha)
- Trung tâm tiếp chuyển hàng hóa (40 ha)
- Kho thông quan nội địa (50 ha).
– Xây dựng kho thông quan và trung tâm tiếp chuyển hàng hóa…
5. Các khu vực chức năng khác
Các khu vực cần được bảo tồn: Khu công viên lịch sử văn hóa dân tộc (Long Bình), khu di tích vùng Bưng Sáu Xã (Long Trường, Phú Hữu), khu du lịch Vườn Cò (Long Thạnh Mỹ)
– Các khu vực xây công trình tôn giáo: cơ sở tôn giáo tín ngưỡng hiện hữu sẽ được nâng cấp. Các di tích lịch sử, văn hóa và kiến trúc cũng được khoanh vùng bảo vệ. Quản lý, bảo dưỡng và duy trì di tích lịch sử, văn hóa có giá trị.
– Các viện nghiên cứu, trường đại học, trường đ cao đẳng, trung học chuyên nghiệp:
+ Khu trường đại học và các cơ sở đào tạo hiện hữu được chỉnh trang: với quy mô 90,22ha
+ Khu trường đại học và các cơ sở xây dựng mới khoảng 222,8ha: gồm cụm các trường đại học & cao đẳng thuộc Long Phước, trường Đại học Kiến trúc, Sân khấu điện ảnh…
– Các cơ quan, tổ chức hiện hữu được chỉnh trang: quy mô 10 ha, ven Xa lộ Hà Nội, tại Phước Long A, phường Hiệp Phú.
– Nghĩa trang: quy mô 34 ha, tại Long Bình.
Bạn đang theo dõi bài viết bản đồ Quận 9 của đội ngũ Batdongsan.com.vn tổng hợp. Để biết thêm thông tin bản đồ của các quận huyện khác trên địa bàn thành phố Hồ Chí Minh, bạn có thể tham khảo tại các bài viết sau.
Thu Pham




