
Ngôi nhà phố cũ được cải tạo thành không gian sống thoáng đãng, đầy ánh sáng tự nhiên dù tọa lạc trên mảnh đất hẹp ngang. Ngoài ra, đây cũng là nơi làm việc của gia chủ – một xưởng may đồ thủ công bằng da.

Ngay từ mặt tiền, hệ thống khung lưới thép phân tầng là điểm nhấn kiến trúc đáng chú ý nhất của công trình. Khung lưới thép được sơn trắng, mô phỏng những sợi chỉ kết nối sản phẩm may thủ công tỉ mỉ, tinh tế.

Các không gian chung của ngôi nhà được sắp xếp trên từng cấp bậc, phòng khách, phòng ăn và khu bếp được bố trí dọc theo mặt sàn dài.

Khung lưới thép được tạo thành từ những khối lập phương rỗng, được ứng dụng xuyên suốt ngôi nhà, vừa phân chia các không gian, vừa đóng vai trò là cầu thang, đưa ánh sáng và không khí tự nhiên lưu chuyển trong nhà.

Quá trình cải tạo đã loại bỏ những bức tường không cần thiết, tạo ra một không gian mở thoáng và sáng. Tường gạch mộc tạo ấn tượng đơn giản, thô mộc và tự nhiên cho ngôi nhà.

Đáy giếng trời có trồng một cây khế lớn và tiểu cảnh xung quanh, bổ sung hơi thở thiên nhiên cho không gian sống của con người, xóa nhòa ranh giới giữa bên trong và bên ngoài.

Những mảng xanh xuất hiện rải rác khắp không gian sinh hoạt cũng như làm việc của gia chủ.

Những “sợi chỉ” chạy khắp ngôi nhà như đang may các không gian lại với nhau, tạo ra sự kết nối mật thiết, chắc chắn như sản phẩm khâu may thủ công của người thợ tài hoa.
Gia chủ chia sẻ: “Ngôi nhà này rất có ý nghĩa với chúng tôi vì đó là thành quả sau rất nhiều những cố gắng và nỗ lực không ngừng trên con đường thực hiện ước mơ.” 
Lee &Tee House còn có không gian vui chơi cực kỳ thú vị của những đứa trẻ. Các bé có thể thoải mái khám phá thiên nhiên ngay bên trong ngôi nhà thân yêu của mình.

Phòng tắm và khu vệ sinh cũng xanh mướt.
Mặt bằng tầng trệt và tầng lửng

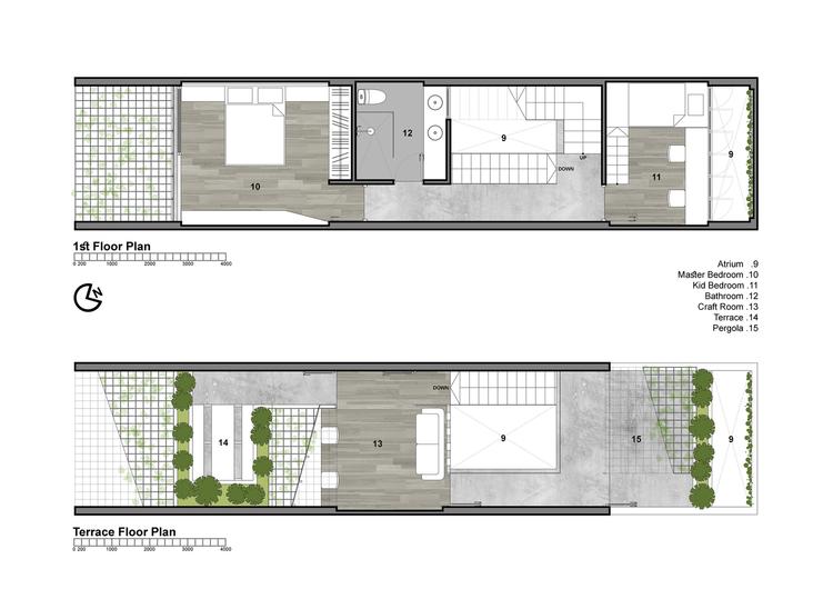
Mặt bằng tầng hai và sân thượng
- Tên công trình: Lee&Tee House
- Địa điểm: TP. Hồ Chí Minh
- Đơn vị thiết kế: Block Architects
- Kiến trúc sư phụ trách: Đặng Đức Hoà
- Diện tích: 261m2
- Năm hoàn thành: 2016
- Ảnh: Quang Dam
Hương Liên




