
Trên khu đất rộng tới 3500m2, công trình được thiết kế với 5 khối riêng biệt, được sắp xếp ngẫu nhiên dưới mái nhà lợp tranh đặc trưng của kiến trúc nhà truyền thống miền Tây Nam Bộ, bên cạnh là hồ nước nuôi cá Koi đủ màu sắc sinh động.

Các khối nhà được chia tách, tạo ra những góc nhìn đa dạng từ bên trong và bên ngoài công trình. Ngoài ra, giải pháp thiết kế này còn cung cấp ánh sáng và thông gió tự nhiên cho mọi không gian trong nhà.

Phần mái nhà gồm 3 lớp: lớp trên cùng lợp tranh gây ấn tượng thân thiện với môi trường, giúp công trình hài hòa với khung cảnh thiên nhiên xung quanh; bên dưới là lớp mái tôn và lớp trần với vật liệu hoàn thiện bằng gỗ.

Hệ mái 3 lớp cũng là giải pháp chống nóng, giữ cho không gian bên dưới luôn mát mẻ quanh năm. Hệ thống trần gỗ được sơn cùng màu với bức tường bê tông vân gỗ, tạo sự đồng điệu, thống nhất trong tổng thể ngôi nhà.

Không gian mặt nước cạnh nhà cũng góp phần giảm nhiệt, làm mát cho ngôi nhà vào những ngày hè nóng nực ở miền Tây. Nhìn từ trên cao, ngôi nhà như đang nổi trên mặt nước.

Khu vườn rộng hơn 3000m2 tạo cảnh quan xanh tươi bao bọc ngôi nhà, gia chủ có thể tận hưởng cảm giác thư thái, gần gũi với thiên nhiên.

Thay vì sàn gạch, đội ngũ thiết kế sử dụng sàn bê tông để giảm chi phí, đồng thời tạo cảm giác thoải mái cho người đi chân trần trên mặt sàn.

Sự tương đồng về màu sắc và cảm quan vật liệu đã tạo ra một không gian tĩnh lặng, hài hòa với cảnh quan xung quanh.

Dọc theo hệ thống mái, kiến trúc sư thiết kế 1 khe lấy sáng cho khu vực giữa nhà. Thông qua khe nhỏ này, người sống trong nhà có thể cảm nhận được chuyển động của mặt trời, tạo hiệu ứng ánh sáng biến hóa trong ngày.

Một phòng ngủ được thiết kế mở, nhìn thẳng ra hồ nước và vườn cây xanh tốt.

Ngôi nhà Am House hướng tới một không gian yên bình, vui tươi và tự do, là nơi gia chủ có thể gạt bỏ những bộn bề lo toan của cuộc sống thường ngày để tìm về với sự bình yên trong tâm hồn, vun đắp sự hòa hợp và tái tạo năng lượng mỗi dịp cuối tuần.

Phòng tắm được thiết kế tối giản, mộc mạc với điểm nhấn là chiếc bồn tắm bằng bê tông mài.

Góc bếp xinh xắn lấy sáng tự nhiên thông qua khung cửa kính với thiết kế lạ mắt.

Mặt bằng tổng thể

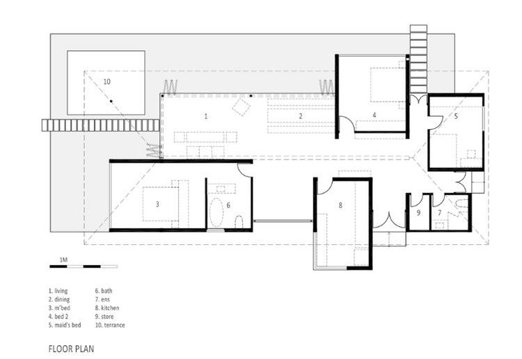
Mặt bằng thiết kế ngôi nhà
- Tên công trình: Am House
- Địa điểm: Cần Giuộc, Long An
- Diện tích: 184m2
- Đơn vị thiết kế: AmDesign Architects, CTA | Creative Architects, Time Architects
- Kiến trúc sư phụ trách: Nguyễn Hữu Duy, Nguyễn Duy, Bùi Thế Long
- Năm hoàn thành: 2017
- Ảnh: Hiroyuki Oki
Hương Liên




